Zala megye, Hévíz
 

Ingatlan adatai
Irányár: 99 000 000 Ft
Típus: lakás (újépítésű)
Kategória: eladó
Alapterület: 82 m2
Fűtés: -
Állapota: új
Szobák száma: 3
Építés éve: 2025
Szintek száma: -
Részletes leírás
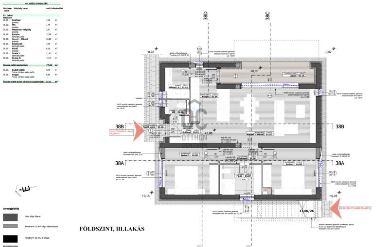
CSAK AZ OTTHON CENTRUM KIEMELT KÍNÁLATÁBAN!Eladásra kínálok Hévíz egyik legjobb utcájában , közel a központhoz mégis családias , madárcsicsergős környezetben elhelyezkedő ,zárt lakóparki földszintes lakást .A társasház korszerű építészeti megoldásokkal, időtálló anyaghasználattal kerül kivitelezésre . A modern külső, átgondolt belső tereket rejt. Kiváló ingatlan azok számára, akik mindenigényt kielégítő, esztétikus környezetben szeretnék megtapasztalni a balatoni életstílust, mind otthonként , mind nyaralóként használva, ill. értékállóság tekintetében ideális akár befektetési célra egyaránt. A kitűnő lokáció , ill. a közeli dombokra tekintő , festői panoráma révén Hévíz egyre felkapottabb területén kerülnek kivitelezésre a zárt lakóparki ingatlanok , ahol folyamatosan új építésű házak épültek/épülnek .Átadás : 2027 júliusFÖLDSZINT , III. LAKÁS FŐBB JELLEMZŐI- 77,02 m2 lakótér + 9,34 m2 terasz + 60m2 kertMŰSZAKI LEÍRÁS- Nyílászárók : műanyag szerkezetű nyílászárok, redőnnyel , szúnyoghálóval- Falazat: Porotherm 30 + 15 cm hőszigetelés- Fűtés: levegő-víz hőszivattyús padlófűtés- nappali-konyha-étkező egybenyitott , DNY- i tájolásúak- tágas, napfényes terek jellemzik-külön mérőórák-társasház alapító okirattal fog rendelkezni-energiahatékonysága révén alacsonya rezsi költség- Szaniterek: Mosdó + csaptelep → BR 100.000 FT/szett,Wc tartály+csésze+nyomólap → BR 120.000 FT/szettZuhanyfal + lefolyó +csaptelep + kifolyó szerelvények BR 250.000 FT/szett választhatóak- Vízmelegítés: elektromos ARISTON bojler 150L- Légtechnika: WC és fürdő kapcsolható ventilátor- Hidegburkolat: Előtér, közlekedő, konyha, vizes helyiségek, erkély 12.000,- Ft/m2- Melegburkolat: Szobák, élettér, gardrób 8.000,- Ft/ m2- Klíma előkészítés 2 helyen (!)- napelem rendszer előkészítés (!)- Vízlágyító rendszer előkészítése (!)- Parkolás : 1 db nyitott autóbeálló-parkosított kertA vételár nem tartalmazza a beépített bútorokat, lámpatesteke . Igény esetén garázs hozzávásárolható bruttó 6.000.000 Ft / férőhely .CSOK, HITEL IGÉNYELHETŐ RÁ!FIZETÉSI FELTÉTELEKSzerződéskötésnél 10% foglaló + 20% előleg szükséges , további fizetés szerződésben rögzített építési ütemezés szerint történik!LOKÁCIÓCsodálatos zöld környezetben várja Önt a világon egyedülálló Hévízi gyógytó. Ató körül elterülő erdős parkok és a város védett növényvilága a nyugodt pihenés és gyógyulás záloga. Afürdőváros tiszta levegője és barátságos atmoszférája, az itt-élők vendégszeretet mind fokozzák agyógyhatást. Élvezze egész évben akár a gyógyfürdő adta pozitív hatásokat! Kitűnő kávézók, mozik, éttermek és masszázscentrumok közelsége lehetővé teszik a maximális kikapcsolódás élményét .Keszthely 8 km, Zalacsány pedig 10 km autóút, ahol akár golfozásra is van lehetőség, Zalakaros 30 km.Hévíz-Balaton Repülőtér 15 km, Budapest pedig körülbelül 2 órányira elérhető az új M76-os autóútnak köszönhetően!AMENNYIBEN FELKELTETTEM ÉRDEKLŐDÉSÉT , FORDULJON HOZZÁM BIZALOMMAL , VÁROM HÍVÁSÁT AZ ORSZÁG LEGNAGYOBB ÉS LEGELISMERTEBB INGATLANKÖZVETÍTŐ HÁLÓZATA NEVÉBEN!
További adatok
Telekterület: -
Kert mérete: -
Erkély mérete: 9 m2
Felszereltség: -
Parkolás: -
Kilátás: kertre néző
Egyéb extrák:  
-
Hirdető adatai
Hirdető neve: Otthon Centrum
Hirdető telefonszáma: +36 70 412 5631