Hajdú-Bihar megye, Debrecen
 

Ingatlan adatai
Irányár: 108 500 000 Ft
Típus: ház
Kategória: eladó
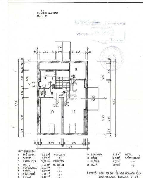
Alapterület: 107 m2
Fűtés: gáz (cirko)
Állapota: -
Szobák száma: 3
Építés éve: 1989
Szintek száma: -
Részletes leírás
Debrecenben a kedvelt Biharikert városrészben, eladóvá vált, 107 nm-es tetőteres ház. Ideális választás azok számára , akik szeretnék megteremteni családjuk otthonát egy csendes, mégis élénk környezetben. Masszív beton alapra épült 1989 -ben. Falazatának, gázcirkó fűtésének és a födém szigetelésének köszönhetően kedvező fenntartási költségű. Nyílászárói fából vannak, hőszigetelt üvegezéssel, redőnnyel ellátva. Tágas nappalival és kettő kényelmes szobával rendelkezik, amelyek mind a családi együttlétek, mind a pihenés tökéletes helyszínéül szolgálnak. A nappali méretének és adottságainak köszönhetően, az ingatlan könnyen 4 szobássá alakítható! A két fürdőszoba kényelmet biztosít a mindennapok során, így a reggeli készülődés nem jelenthet gondot a családtagok számára. A közel 10 nm-es terasz ideális helyszín a reggeli kávézásra vagy a naplemente megcsodálására. A 648 négyzetméteres telek bőséges helyet kínál a szabadban való tevékenységekhez, legyen szó gyerekek játékáról vagy baráti összejövetelekről. A kertben fúrt kút biztosítja a növények öntözését . Az udvarra akár több autó beállása is megoldható a lemez garázson kívül. Az ingatlan lakható állapotú, de a leendő tulajdonos saját ízlésére formálhatja a teret, hogy az számára is otthonná váljon. A környék ellátottsága kiváló, számos bolt, iskola és egészségügyi intézmény található a közelben, amelyek megkönnyítik a mindennapi életet. A Biharikert városrész biztonságos, csendes utcái ideálisak a gyermekek számára, akik szabadon játszhatnak a szomszédságban. A közlekedési lehetőségek is kedvezőek, hiszen a város tömegközlekedési hálózata könnyen elérhető, így a Debrecen belvárosába történő bejutás is gyors és egyszerű. Ez a ház nem csupán egy ingatlan, hanem a családi élet színtere is lehet, ahol a szép emlékek születnek... Csok + és 3%-os hitelre is alkalmas!További felvilágosításért várom megkeresését!Debrecen, eladó, családi ház, önálló, 3 szoba, gázfűtés, Biharikert
További adatok
Telekterület: 648 m2
Kert mérete: 648 m2
Erkély mérete: 10 m2
Felszereltség: -
Parkolás: -
Kilátás: -
Egyéb extrák:  
-
Hirdető adatai
Hirdető neve: Otthon Centrum
Hirdető telefonszáma: +36 70 716 9706