Hajdú-Bihar megye, Debrecen
 

Ingatlan adatai
Irányár: 220 000 000 Ft
Típus: ház
Kategória: eladó
Alapterület: 176 m2
Fűtés: -
Állapota: új
Szobák száma: 4
Építés éve: 2025
Szintek száma: -
Részletes leírás
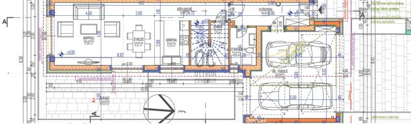
Elit környezetben, letisztult stílusú otthon.Debrecenben az új építésű Liget lakóparkban, nívós családi házak ölelésében eladó újonnan épülő, letisztult vonalvezetésű otthon.Megbízható, igényes kivitelezési munka, számos referenciával rendelkező kivitelezőtől.Minőségi kivételezés mellett nagy hangsúly kerül az esztétikus megjelenésre is.Paraméterei:- telek mérete: 307 nm- nettó hasznos alapterült 157 nm, + 19nm és 13nm tarasz és 6 nm-s erkély- falazata: 30 cm -es Phorotherm tégla+ 15 cm vastag külső szigetelés- aluminium nyílászárók: kívül - belül antracit szinezetű, fokozott hőszigetelésű, 3 rétegű üveggel, a tolóajtók emelő toló szerkezettel készültek - árnyékolás: elektromos működtetésű, szines, aluminium redőny beépített tokkal - fűtés: levegő víz hőszivattyú rendszer (DAIKIN) , minden helységben padlófűtés - hűtés: levegő víz hőszivattyú rendszer mennyezeti hütőpanelekkel- légcserélő, szellőztető rendszer, és beépített vízlágyitó rendszer is kiépítésre kerülA tágas világos terek, alaposan megtervezett ideális elosztás, biztosítja az ott lakók kényelmét.- 32 nm konyha - étkező - nappali mely közvetlen terasszal kapcsolatos- 3 db 11 nm-nél nagyobb hálószoba + 6 nm-s gardrob szoba, 2 db fürdőszoba- a beépítésre kerülő gépesített, prémium konyhabútort, beépített gardrobszekrényt a vételár tartalmazzaA hozzáértés és a szakértelem korrektséggel, precíz, határidők betartásával párosul!Részletes műszaki leírással, a kulcsra kész befejezésre vonatkozóan illetve bővebb tájékoztatásért hívjon bizalommal!Rugalmas ügyintézéssel számíthat ránk a hitel ügyintézéstől a kulcsátadásig!Ideális otthon egy ideális helyen! Hívjon, hogy az ingatlant személyesen is bemutathassam!Debrecen, Liget, frekventált, prémium, otthon, luxus, lakópark,
További adatok
Telekterület: 307 m2
Kert mérete: 307 m2
Erkély mérete: 35 m2
Felszereltség: -
Parkolás: -
Kilátás: -
Egyéb extrák:  
-
Hirdető adatai
Hirdető neve: Otthon Centrum
Hirdető telefonszáma: +36 70 388 5001