Budapest, XI.kerület
 

Ingatlan adatai
Irányár: 76 000 000 Ft
Típus: lakás (panel)
Kategória: eladó
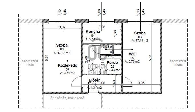
Alapterület: 51 m2
Fűtés: távfűtés
Állapota: -
Szobák száma: 2
Építés éve: 1975
Szintek száma: -
Részletes leírás
Alapterület: 51 m² | Szobák száma: 2 | Emelet: 2. | Déli fekvés | Jó állapotúEladásra kínálunk egy remek elosztású, 2 szobás, 51 m²-es panellakást Budapest XI. kerületében, a közkedvelt Allende parkban, amely ideális választás pároknak, kis családoknak vagy befektetőknek is.Főbb jellemzők:Tágas, világos terek – déli fekvésének köszönhetően a lakás egész nap napfényes.Mindkét szoba klimatizált, így a nyári meleg sem okoz gondot.Konyhabútor 2 éve készült, modern, praktikus kialakítással.Jó állapotú lakás, azonnal költözhető.2. emeleti elhelyezkedés, nincs liftre utaltság, de nem is kell sokat lépcsőzni.Távfűtés egyedi méréssel – energiatakarékos megoldás.A panelprogram keretében a ház szigetelést kapott, így a hőszigetelés is kiváló.A közös költség csupán 7650 Ft/hó.A parkolás közterületen ingyenes!Extrák:A társasház földszintjén közös tároló áll a lakók rendelkezésére.Társasháztól garázs bérelhető, mindössze 6000 Ft/hó díjért.Térfigyelő kamerarendszer gondoskodik a biztonságról az Allende park egész területén. Környék, elhelyezkedés:A lakás rendkívül csendes környezetben található, mégis kiváló infrastruktúrával:A közelben játszóterek, iskolák, óvodák, boltok (Aldi, Lidl, Etele Pláza).Pár perc sétára található a Kelenföldi futópálya, Nyéki Imre Uszoda, Bikás park – kiváló lehetőség sportolásra, kikapcsolódásra.Közlekedés: buszok – 7, 114, 214 – gyorsan elérhető a belváros és a metró is.Ne maradjon le erről a kiváló lehetőségről!Ideális elhelyezkedés, jó állapot, klíma, szigetelés, alacsony fenntartási költségek – minden adott egy kényelmes otthonhoz vagy biztos befektetéshez.???? Érdeklődni lehet a megadott elérhetőségen – tekintse meg személyesen is!
További adatok
Telekterület: -
Kert mérete: -
Erkély mérete: -
Felszereltség: -
Parkolás: -
Kilátás: kertre néző
Egyéb extrák:  
-
Hirdető adatai
Hirdető neve: Otthon Centrum
Hirdető telefonszáma: +36 70 716 8696