Budapest, XI.kerület
 

Ingatlan adatai
Irányár: 179 900 000 Ft
Típus: lakás (tégla)
Kategória: eladó
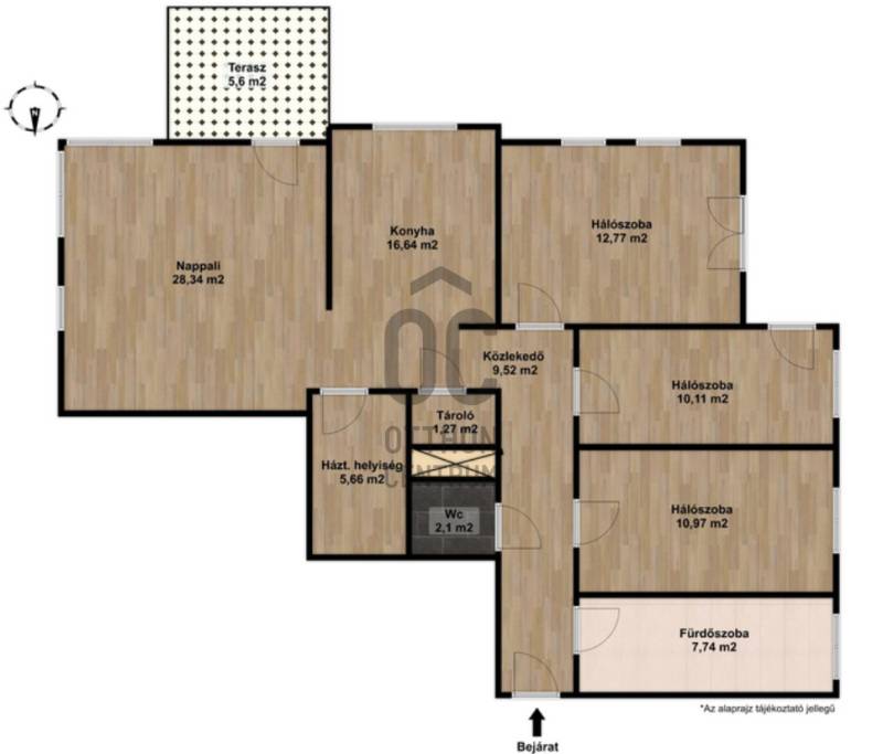
Alapterület: 104 m2
Fűtés: -
Állapota: -
Szobák száma: 4
Építés éve: 2018
Szintek száma: -
Részletes leírás
Hangulatos lakóparki otthon elérhető kertkapcsolattal, a 11. kerület Örsöd városrészében!Eladásra kínálok egy azonnal költözhető, újszerű, igényesen kialakított 4 szobás lakást a Budaörs határán fekvő lankás dombhát kertvárosi lakóövezetében, egy felkapott és biztonságos környéken. Az ingatlan nyugodt, családias környezetben helyezkedik el, egy fenntartható, innovatív lakóparkban. A társasház az exkluzív otthonokkal övezett Spanyolrét és Madárhegy közvetlen szomszédságában helyezkedik el. A lakás frissen lett festett, és kitűnő elosztással rendelkezik.A tulajdonosok az ingatlan berendezése során a minőséget és a kényelmet helyezték előtérbe. A lakás minden helyisége a korszerű, mai igényeknek megfelelő otthont, emellett a meghitt és letisztult hangulatot sugározza. Az ingatlanba belépve szembe tűnik a békés, harmonikus színvilág és a napfényes belső terek. A lakás gazdaságos hőellátását zöld megoldás biztosítja, amely környezetbarát és korszerű technológia. Az energiatakarékosság jegyében a hűtés-fűtés és a meleg víz előállítása levegő hőszivattyúval történik, amely garancia a magyarországi klimatikus viszonyok mellett az optimális működésre, hiszen a rendszer automatikusan választja ki a leghatékonyabb működési beállítást. A lakások hűtés-fűtés rendszerei a lakószobákban és a konyhában a mennyezetbe kerültek, míg a fürdőszobába törölközőszárító van. A lakás fűtése padlófűtésen keresztül történik!A hőszabályozást termosztáton keresztül külön is, helyiségenként, illetve egyben is elvégezhetjük.A lakáshoz kötelezően megvásárlandó az épület alagsorában található 2 db teremgarázshely, valamint 2 db zárható tároló. Ezek ára összesen 12.000.000 Ft.A lakás zöld növényzettel körülölelt, osztatlan közös tulajdonú kerttel rendelkezik, míg terasza saját. (Szokásjog alapján ezt a lakást közvetlen körülvevő teraszt és zöld területet más nem használja.)Kialakítás:- Nappali-konyha, hálószoba 1, hálószoba 2, hálószoba 3, fürdőszoba, toalett, háztatási helyiság, tároló, közlekedő, teraszÁllapot:A gondos odafigyelésnek és a kiváló minőségű belsőépítészeti megoldásoknak és prémium bútoroknak köszönhetően az ingatlan tökéletes, költségmentes állapotban van.A 2018-ben épült lakópark révén, a teljes víz és villanyvezeték és fűtéshálózat új.Költségek:- víz, villany, hőmennyiség mérés: fogyasztás alapján, saját mérőórával (utóbbit a közös képviselőnek bejelentve)- közös költség: 55.000.-Ft (ez tartalmazza, többek között: teremgarázs, tároló, biztosítás, kertész, takarítás, szemétszállítás, felújítási alap költségeit)A lakásról:- D és K-i tájolás (nappali)- 2 szintes ház földszintjén- tágas nappali sok ablakkal és kertre néző kilátással, teraszra vezető ajtóval, beépített nappali-bútorfallal- gyönyörű ablakos és gépesített amerikai-konyha: prémium kivitelezésű Corian konyhabútorral, beépített hűtővel és mosogatógéppel, főzőlappal és elektromos sütővel, kivezetett szagelszívó, egyedi tervezésű étkező asztal, spotlámpák- nagy méretű műanyag nyílászárók aereco-val, minden helységben szúnyoghálóval és elektromos aluredőnnyel felszerelve, amely távirányítóval szabályozható- 3 rétegű hő-zajvédő üvegezésű ablakok és teraszajtók- a mennyezeti fényforrások LED-esek és dimmelhetőek távirányító segítségével- biztonsági bejárati ajtó, minőségi belső nyílászárók- 3 db normál méretű külön nyíló szoba- ép, igényes letisztult víz és kopásálló vinyl padló valamint járólap burkolatok- tároló helyiség a gépészettel, valamint háztartási helyiség plusz fagyasztóval és tároló-rendszerrel, mosógép kiállással- folyosón beépített szekrény- külön helységben wc, kézmosóval- tágas káddal, zuhanyzóval és wc-vel rendelkező fürdőszoba ventilátorral, és törölközőszárítóval- 3 helységből kijárat a kertbe- kerítéssel és kapuval körbevett, ápolt, ültetett növényekkel rendelkező kert, 5,6 m2-es fedett terasszal- füstjelző és riasztó rendszer kiépítve- a lakásban látható bútorok és egyéb berendezések megegyezés tárgyát képzikA házról:- teljesen körbeszigetelt ház- igényes, rendszeresen takarított, zárt lépcsőház- kultúrált, értelmiségi lakóközösség, aktív online-házcsoport is- 8-9 lakásos társasház (összesen 5 épület és 51 lakás)- kaputelefon- saját, zárható tároló - 2db- mélygarázs - 2 hely- ingyenes parkolás a ház előtt- zöld növényzettel szomszédos és patakkal szomszédos lokáció- gondosan ápolt parkosított, gazdag növénnyekkel övezett zárt kert, amelyet a kertész valamint automata öntözőrendszer tart karban- a lakópark saját játszótérrel rendelkezik - a lakóparkon belül egy zárt, felszíni kocsibeálló is van amelyet érkezési sorrendben lehet használni ingyenesen.Környezet:A lakópark környezete infrastrukturálisan kitűnően ellátott, közvetlen közelben iskolák, bankok bevásárlóközpont, rendelő, gyógyszertárak találhatóak, a belvárosba való gyors bejutást pedig számos buszjárat és a M4 Metró biztosítja. A környék csendes, családbarát és rendkívül jól ellátott: óvoda és bölcsőde gyalogosan is elérhető, a közelben pedig számos bevásárlási lehetőség található (SPAR, CBA, Lidl, Aldi, Penny). Az M1–M7 autópálya, valamint a város központja is gyorsan megközelíthető, ha valaki szereti a Balatont ez kimondottan előnyös. Rendezett tulajdonjog, az ingatlan per-, teher- és igénymentes.Családok számára tökéletes otthon, de befektetés szempontjából is értékálló, kiemelt térségben helyezkedik el, gyorsan kiadható hosszútávra is akár.Az ingatlan megvásárlásához jelzáloghitel, CSOK, Babaváró is igénybe vehető, melynek ügyintézésében közvetlenül tudunk segítséget nyújtani.Ha felkeltette az ingatlan az érdeklődését és szívesen lenne új lakója ennek a kedves és korrekt tulajdonos birtokában lévő lakásnak, úgy forduljon hozzám maximális bizalommal és mindenben segítek.
További adatok
Telekterület: -
Kert mérete: -
Erkély mérete: 6 m2
Felszereltség: -
Parkolás: -
Kilátás: kertre néző
Egyéb extrák:  
-
Hirdető adatai
Hirdető neve: Otthon Centrum
Hirdető telefonszáma: +36 70 461 9841