Budapest, III.kerület
 

Ingatlan adatai
Irányár: 222 500 000 Ft
Típus: ház
Kategória: eladó
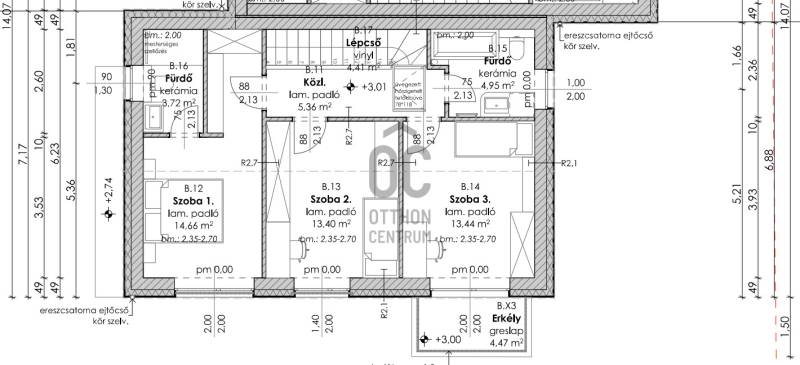
Alapterület: 130 m2
Fűtés: -
Állapota: új
Szobák száma: 4
Építés éve: 2026
Szintek száma: -
Részletes leírás
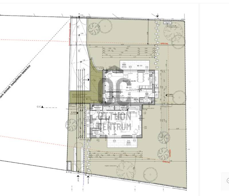
Álmai otthona várja Aranyhegyen! – Új építésű, modern ikerház fél eladóTapasztalt fejlesztő kínál eladásra Aranyhegyen egy új építésű, 4 szobás (nappali + 3 hálószoba) ikerház felet magas műszaki tartalommal, sík, kizárólagos használatú, teljesen szeparált telekrésszel. Az egyedi adottságoknak köszönhetően a kínált ingatlan olyan, mintha önálló családi házat venne. Az ingatlan Aranyhegy közepén, egy már teljesen kiépült, szinte kizárólag új építésű házakkal körülvett lakókörnyezetben helyezkedik el, így ez az utolsó beépítetlen telek a környéken!A lakótér mérete nettó 118,5m2, amely tökéletes elosztást kínál. A földszinten tágas nappali-konyha-étkező, előtér, fürdő és egy háztartási helyiség, míg az emeleten 3 hálószoba és 2 fürdőszoba kap helyet a mellékelt alaprajzok szerinti ideális elrendezésben. A nappaliból leválasztva akár egy 5. szoba is kialakítható eseti igény szerint.Ezen kívül az eladásra kínált ingatlan részét képezi még egy 14nm-es kertre néző terasz, illetve egy 4,5nm-es emeleti erkély panorámás kilátással, valamint a 2db kényelmes méretű gépkocsi udvari beálló.Energiatakarékos, környezettudatos kialakítás:Az ingatlan alapesetben BB energetikai besorolással rendelkezik, azonban napelemek telepítésével AA++ kategóriára fejleszthető – garantált energiatakarékosság és fenntarthatóság!Kiemelkedő műszaki tartalom:Monolit vasbeton födém, kerámia falazat;Hőtechnikailag méretezett grafitos hőszigetelés;Háromrétegű nyílászárók;Levegő-víz hőszívattyús, energiatakarékos hűtés-fűtési rendszer – mennyezet hűtés-fűtés, padlófűtés;Motoros redőnyök szúnyoghálóval;Magas minőségű hideg- és melegburkolatok, szaniterek, csaptelepek és belső nyílászárók,motoros kapuvideó kaputelefondurva tereprendezésAz ár kulcsrakész állapotra vonatkozik.Szolgáltatások a közelben: élelmiszerbolt, pékség, játszótér, kávézó, kutyafuttatóTömegközlekedés: A 219-es és 160-as buszjáratok megállói 5-10 perc sétatávolságon belülÁtadás várható ideje: 2026 II. félévTeljes körű ügyintézéssel várom a hívását a hét minden napján!
További adatok
Telekterület: 400 m2
Kert mérete: 400 m2
Erkély mérete: 24 m2
Felszereltség: -
Parkolás: -
Kilátás: -
Egyéb extrák:  
-
Hirdető adatai
Hirdető neve: Otthon Centrum
Hirdető telefonszáma: +36 70 412 4351