Jász-Nagykun-Szolnok megye, Szolnok
 

Ingatlan adatai
Irányár: 84 067 550 Ft
Típus: lakás (újépítésű)
Kategória: eladó
Alapterület: 84 m2
Fűtés: elektromos
Állapota: új
Szobák száma: 4
Építés éve: 2026
Szintek száma: -
Részletes leírás
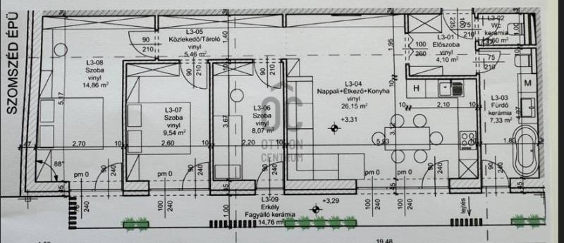
Eladó igényes újépítésű lakás Szolnok belvárosában!Szolnok szívében, egy modern, 12 lakásos újépítésű társasházban kínálunk eladásra egy igényesen kialakított, minőségi anyagokból épült lakást. A lakás tágas, világos, energiahatékony, és minden kényelmet biztosít a leendő tulajdonosának.Ingatlan jellemzői:- 77,11 nm +14,76 erkély- 1. emelet- nappali+ konyha +étkező (26,15 nm) + 3 szoba- tágas terek- fűtés Nobo Fjord fali fűtőtestek- napelem- klímaIdeális választás fiatal pároknak, családoknak vagy befektetésnek is.Várható átadás : 2026- 09 hóTovábbi műszaki leírással állok rendelkezésére!Az ingatlanhoz van lehetőség garázs vagy udvari beálló vásárlására.Irodánkban bankfüggetlen hitel-ügyintézéssel állunk ügyfeleink rendelkezésére!A hirdetésben szereplő információkat a megbízótól kaptuk, irodánk azokért felelősséget nem vállal!Ha felkeltettem érdeklődését, kérem hívjon, forduljon hozzám bizalommal, és nézzük meg együtt !
További adatok
Telekterület: -
Kert mérete: -
Erkély mérete: 15 m2
Felszereltség: -
Parkolás: -
Kilátás: utcai
Egyéb extrák:  
-
Hirdető adatai
Hirdető neve: Otthon Centrum
Hirdető telefonszáma: +36 70 469 3171