Budapest, XX.kerület
 

Ingatlan adatai
Irányár: 44 700 000 Ft
Típus: lakás (tégla)
Kategória: eladó
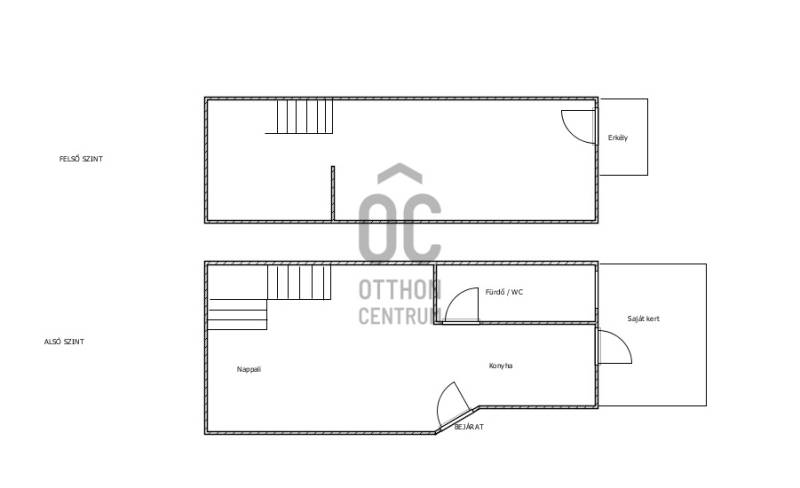
Alapterület: 48 m2
Fűtés: elektromos
Állapota: -
Szobák száma: 2
Építés éve: 1955
Szintek száma: -
Részletes leírás
CSAK KÉSZPÉNZES ÜGYFELEK !!!XX. kerületben, a Honvéd utcában ELADÓ lakásKözös belső udvarból nyílik a lakás, ahol még további 6 db lakás találhatóTelek mérete: 630nmEz a legutolsó lakás, teljesen fel lett újítvaÚj burkolatok, szigetelés, új nyílászárókElkerített, saját kis kertkapcsolattal rendelkezik - 9nmLakás alsó szintje 27nm, felső része bruttó 20nm, összesen tehát 48nmAlacsony rezsi költségNincs gáz, minden elektromosElektromos padlófűtés, klíma, elektromos ARISTON boiler, villany tűzhelySzomszédok csendesek, rendezett a belső udvarLakáshoz tartozik még egy saját tároló is a lakással szemben - 4nmÜres a lakás, azonnal költözhetőAz ingtalan most még NEM hitelképes, ennek az ügyintézése elindult ( 2026.01.20.), remélhetőleg pár hónapon belül megoldódik = PADLÁSTERET ÉPÍTETTÉK BE ENGEDÉLY NÉLKÜL !
További adatok
Telekterület: -
Kert mérete: -
Erkély mérete: 1 m2
Felszereltség: -
Parkolás: -
Kilátás: udvari
Egyéb extrák:  
-
Hirdető adatai
Hirdető neve: Otthon Centrum
Hirdető telefonszáma: +36 70 465 7036