Pest megye, Tárnok
 

Ingatlan adatai
Irányár: 98 000 000 Ft
Típus: ház
Kategória: eladó
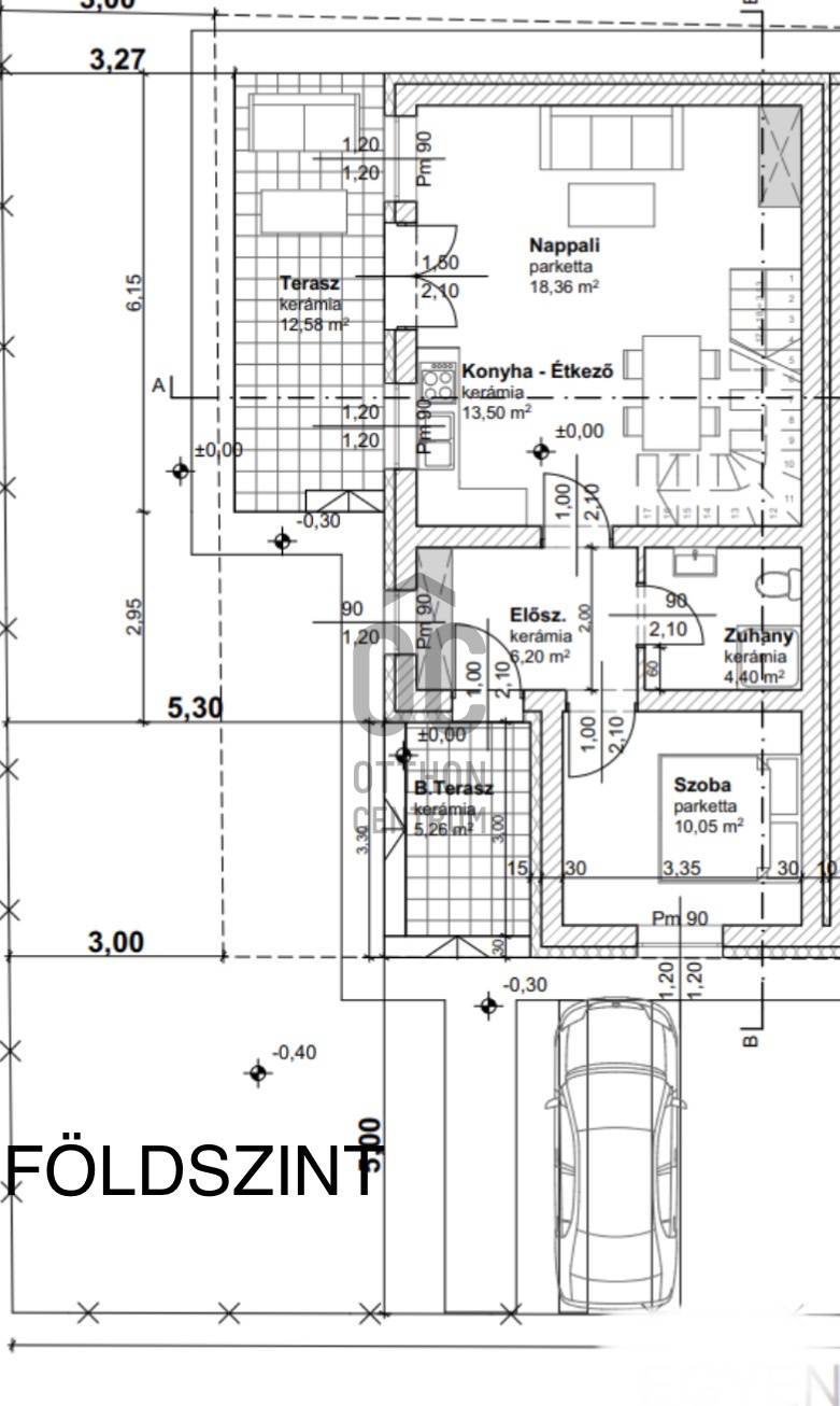
Alapterület: 91 m2
Fűtés: gáz (cirko)
Állapota: új
Szobák száma: 4
Építés éve: 2026
Szintek száma: -
Részletes leírás
TÁRNOKON ÚJÉPÍTÉSŰ IKERHÁZHÁZ:- 98 nm nappali + 3 szoba 2 szinten- 2026-ben épül- minőségi anyagokból- Porotherm tégla + 15 cm dryvit szigetelés- cserép tetőfedés, műanyag nyílászárók- gáz cirka + padlófűtés- Hideg-meleg burkolatok választhatók - 3x32 A áramellátás- remek elosztású , napfényes- 2 DB KLÍMATELEK:- 220 nm saját telek- termőföld feltöltés- elektromos kapu előkészítés- viacolor járdák és dupla autóbeálló- körbe kerítve, utcafronton betonelemes kerítésElhelyezkedés:- Budapesttől 35 percre- Iskola, óvoda, bevásárlási lehetőség pár perc sétáraREFERENCIA HÁZAK MEGTEKINTHETŐK!HITEL ÉS CSOK igényelhető! Minden hivatalos ügyintézésben segítünk!10%-TÓL MÁR MOST FOGLALHATÓ!ÁTADÁS: 2026-06
További adatok
Telekterület: 220 m2
Kert mérete: 220 m2
Erkély mérete: 18 m2
Felszereltség: -
Parkolás: -
Kilátás: -
Egyéb extrák:  
-
Hirdető adatai
Hirdető neve: Otthon Centrum
Hirdető telefonszáma: +36 70 716 8706