Budapest, VI.kerület
 

Ingatlan adatai
Irányár: 278 000 000 Ft
Típus: lakás (tégla)
Kategória: eladó
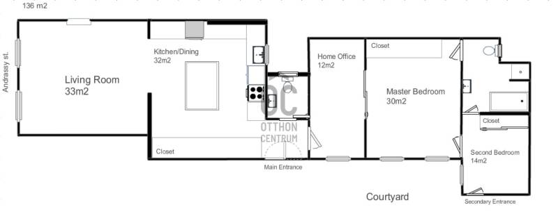
Alapterület: 136 m2
Fűtés: gáz (cirko)
Állapota: -
Szobák száma: 4
Építés éve: -
Szintek száma: -
Részletes leírás
Európa egyik legszebb sugárútja, a kontinens első föld alatti vasútja, az Operaház, színházak, kávézók, luxusüzletek, múzeumok, bérpaloták,alig több, mint 150 éve épült az Andrássy út és ma már a Világörökségünk része.Itt épült a Mendl-bérpalota neoreneszánsz épülete is, csak egy sarokra az Operaháztól és az egykori Balettintézettől - ma már W Budapest luxushotel -,Az épület felújított, liftes, udvarán restaurált, korabeli kútszoborral.A lakás a II. emeleten van, nappalija az Andrássy útra néz,ízlésesen felújított, 136 m2,a tágas nappali - étkező - konyha a maga 65 m2 - vel központi része a lakásnak, családi-baráti-üzleti alkalmak méltó helyszíne,3 szobája jelenleg háló és dolgozóként használt.A lakás klimatizált, fűtése gáz cirkó.Akár a történelmi, pesti belváros prémium részén képzeli el otthonát, akár befektetésként vásárolna, ajánlom figyelmébe ezt a kivételes adottságú, Andrássy úti lakást.Az energetikai tanúsítvány készítése folyamatban van, amint rendelkezésre áll, úgy azzal a hirdetés frissítésre kerül.
További adatok
Telekterület: -
Kert mérete: -
Erkély mérete: -
Felszereltség: -
Parkolás: -
Kilátás: utcai
Egyéb extrák:  
-
Hirdető adatai
Hirdető neve: Otthon Centrum
Hirdető telefonszáma: +36 70 716 9196