Budapest, XII.kerület
 

Ingatlan adatai
Irányár: 295 000 000 Ft
Típus: lakás (tégla)
Kategória: eladó
Alapterület: 178 m2
Fűtés: gáz (cirko)
Állapota: -
Szobák száma: 4
Építés éve: 1990
Szintek száma: -
Részletes leírás
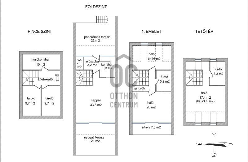
Budapest XII. kerületében, Kútvölgyben, a Szabadság-hegyen egy kivételes adottságú, panorámás, kertkapcsolatos sorházi lakás, csendes, zöldövezeti környezetben. A természet közelsége, a madárcsicsergés és a nyugalom garantált, miközben a városközpont 20 perc alatt elérhető (Széll Kálmán tér, Déli pályaudvar).FŐBB JELLEMZŐK•Lakóterület: 125 nm•Teljes hasznos alapterület: 198 nm (pince + teraszok + erkély)•4 belső szint•2 kertkapcsolatos terasz (20–20 nm)•Erkély (7,5 nm)•3 hálószoba•2 fürdőszoba+ wc•Szuterén: 40 nm•Saját kocsibeálló•Nincs közös költség•Alacsony rezsiELHELYEZKEDÉS•Budapest XII. kerület, Kútvölgy•Csendes, zöldövezeti környezet•20 perc a belváros•Autóval és tömegközlekedéssel is kiváló•Két utcáról megközelíthető•Közel: Normafa, János-hegy, Széchenyi-hegy•Magyar iskola 10 perc, Német iskola 5 perc sétáraKelet–nyugati tájolás, egész napos benapozottság.A 4 szintes lakás kiválóan szeparált, ideális nagycsaládosoknak, többgenerációs együttélésre vagy otthoni munkavégzéshez.A nagy üvegfelületeknek köszönhetően a lakás világos és napfényes. A nappali és a lépcsők ütésálló parafa burkolatot kaptak, az emeleti hálószobák padlószőnyegesek. Az egész lakás meleg, otthonos hangulatú.Fűtés és meleg víz: cirkógáz kazán.4 lakásos ház, minden lakáshoz saját előkert tartozik, a telek többi része közös használatú.A hegyoldali beépítés miatt hosszú lépcsősor vezet a házhoz, ezért mozgáskorlátozottak számára nem ajánlott.Amennyiben felkeltettük érdeklődését, keressen bizalommal.Az energetikai tanúsítvány készítése folyamatban van, amint rendelkezésre áll, úgy azzal a hirdetés frissítésre kerülEz az ingatlan a \"Hűség csomag\" megbízási portfólióhoz tartozik. Részletek az Otthon Centrum weboldalán.
További adatok
Telekterület: -
Kert mérete: -
Erkély mérete: 50 m2
Felszereltség: -
Parkolás: -
Kilátás: kertre néző
Egyéb extrák:  
-
Hirdető adatai
Hirdető neve: Otthon Centrum
Hirdető telefonszáma: +36 70 716 9961