Budapest, XI.kerület
 

Ingatlan adatai
Irányár: 69 900 000 Ft
Típus: lakás (panel)
Kategória: eladó
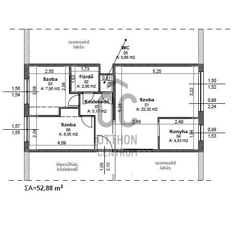
Alapterület: 53 m2
Fűtés: házközponti egyedi méréssel
Állapota: -
Szobák száma: 3
Építés éve: 1980
Szintek száma: -
Részletes leírás
XI. kerület kedvelt részén, Gazdagréten eladó egy kiváló elosztású, napfényes, 3 szobás, panellakás!Új tulajdonosát keresi Gazdagréten, Budapest legkedvezőbb megítélésű lakótelepén egy 3 szobás, világos, jó elosztású panellakás.Ha csendes, zöld környéken keres jó adottságokkal rendelkező ingatlant, ezt feltétlenül nézze meg!A KÖRNYÉKRŐL:- XI. kerület, Gazdagréti lakótelep- Frekventált, mégis csendes, zöld környék jó infrastruktúrával és tömegközlekedéssel.- Sétatávolságra elérhető a 153, 154, 108E, 8E, 139, 908 buszok megállója és 8 percre van a 4-es metró.- Élelmiszerbolt, gyógyszertár 200 méteren belül.- Orvosi rendelő, iskola, óvoda, éttermek, fodrászat, kozmetika 5 perc sétával elérhető.- A közelben több játszótér, parkos pihenő rész, kikapcsolódásra alkalmas terület van.- A közeli Gazdagréti uszoda nyáron strandolási lehetőséget nyújt.- Parkolni a környéken biztonságosan, könnyen és díjmentesen tudunk.A HÁZRÓL:- 1987-ben épült, 11 emeletes, tiszta és rendezett panelház.- Lakóközössége csendes, barátságos, vegyes korosztály.A LAKÁSRÓL:- 53 m2-es, 3 szobás, 1. emeleti ingatlan- Zöldre néző kilátással rendelkezik, tájolása nappali keleti, hálók nyugati- Felosztása: előszoba, nappali, 2 hálószoba, konyha, étkező, fürdőszoba, wc- Műszakilag és esztétikailag is megkímélt, jó állapotú- A közös költség havi 15.000,- Ft.Ha szeretne egy kiváló lokációban, egy jó elosztású ingatlant, ne habozzon, tekintse meg személyesen is!Ez az ingatlan a \"Hűség csomag\" megbízási portfólióhoz tartozik. Részletek az Otthon Centrum weboldalán.
További adatok
Telekterület: -
Kert mérete: -
Erkély mérete: -
Felszereltség: -
Parkolás: -
Kilátás: utcai
Egyéb extrák:  
-
Hirdető adatai
Hirdető neve: Otthon Centrum
Hirdető telefonszáma: +36 70 716 9961