Budapest, XIII.kerület
 

Ingatlan adatai
Irányár: 285 000 000 Ft
Típus: lakás (tégla)
Kategória: eladó
Alapterület: 89 m2
Fűtés: távfűtés
Állapota: -
Szobák száma: 3
Építés éve: 1930
Szintek száma: -
Részletes leírás
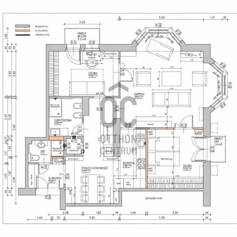
Közvetlenül a Szent István Park mellett kínálunk megvételre egy 4. emeleti, háromszobás saroklakást, amelynek egyik legnagyobb értéke a kivételes elhelyezkedés és a több irányba nyíló panoráma. A lakásból egyszerre élvezhető a Szent István Park zöld látványa, a Duna panorámája, valamint a Pozsonyi út klasszikus eleganciája – ez a ritka adottság teszi igazán különlegessé ezt az ingatlant.A saroklakás néhány éve teljes körű műszaki és esztétikai felújításon esett át, belsőépítész tervei alapján. Az enteriőrt egyedi gyártású ajtók, bútorok és igényes burkolatok határozzák meg, a gondosan megválasztott világítási elemek, köztük a karakteres csillárok pedig elegáns, kifinomult hangulatot teremtenek.A biztonsági bejárati ajtón belépve egy tükrös beépített szekrénnyel ellátott előszoba fogad, innen nyílik a zuhanyzós fürdőszoba és az étkező, ahol szintén egyedi tervezésű, letisztult bútorok kerültek beépítésre. A közlekedőből további fürdőszoba érhető el, majd a lakás központi tere, a tágas nappali következik, amelyet nagy ablakfelületek, stílusos álmennyezet és halszálkás mintában lerakott fa parketta tesz igazán karakteressé. A nappaliból nyílik a két erkélyes hálószoba, amelyek tovább erősítik a lakás világos, átgondolt térélményét.Az ingatlan távfűtéssel rendelkezik egyedi méréssel, a korszerű fűtőtestek megjelenésükben a klasszikus stílust idézik, miközben megfelelnek a mai elvárásoknak.Újlipótváros nem csupán lokáció, hanem egy stabil értéket képviselő életérzés, ahol a park közelsége, a Duna látványa és a városrész hangulata hosszú távon is kiemelkedő értéket biztosít. A környék egyik ismert sajátossága a parkolás nehézsége, ugyanakkor ennél az ingatlannál megoldást jelent, hogy a lakástól mindössze 2 percre teremgarázs beálló is elérhető, amely külön, 15 millió forintért megvásárolható.Az ilyen adottságú, panorámás saroklakások ritkán kerülnek piacra ezen a környéken – érdemes személyesen is megtekinteni!A képek között látványtervvel minimalista burkolattal is megmutatjuk a konyhát - étkezőt. Az eredeti és a tervezett állapot egymás után látható. Az energetikai tanúsítvány készítése folyamatban van, amint rendelkezésre áll, úgy azzal a hirdetés frissítésre kerül.
További adatok
Telekterület: -
Kert mérete: -
Erkély mérete: 4 m2
Felszereltség: -
Parkolás: -
Kilátás: kertre néző
Egyéb extrák:  
-
Hirdető adatai
Hirdető neve: Otthon Centrum
Hirdető telefonszáma: +36 70 388 5006