Heves megye, Hatvan
 

Ingatlan adatai
Irányár: 60 000 000 Ft
Típus: lakás (tégla)
Kategória: eladó
Alapterület: 151 m2
Fűtés: gáz (konvektor)
Állapota: -
Szobák száma: 6
Építés éve: 1950
Szintek száma: -
Részletes leírás
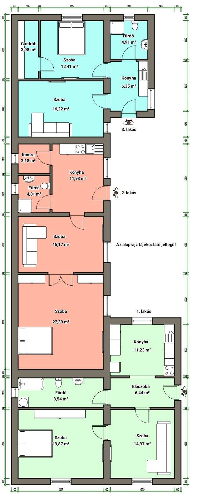
BEFEKTETŐK FIGYELEM!!! *** 2 db lakás vételáráért cserébe 3 db LAKÁST KAP! *** Hatvan város KÖZPONTJÁBAN eladó egy saját 454 m2-es telken elhelyezkedő, 3 db külön helyrajzi számon nyilvántartott lakás, amelyek alapterülete összesen nettó 151m2. Az ingatlanok megvásárlása kizárólag egyben lehetséges a telekkel együtt. A teljes közmű hálózat be van vezetve az ingatlanokba. Az épület külső állapota felújítása került, illetve a 2. lakás szintén teljeskörű felújításon esett át! Az udvarban található minden lakáshoz külön tároló is.1. Lakás 51 m2 - Átlagos állapotú, utca fronti kilátással rendelkezik. (2szoba, előszoba, fürdő, konyha helyiségekből áll)2. Lakás 59m2 - Felújított állapotú, belső udvarra néznek az ablakai. (2szoba, fürdő, konyha, kamra helyiségekből áll) - Gépészet, burkolatok, fürdőszoba, minden új3. Lakás 41m2 - Felújítandó állapotú, belső udvarra néznek az ablakai. (2szoba, fürdő, konyha, kamra helyiségekből áll)Hosszú távon JÖVEDELMEZŐ és ÉRTÉKÁLLÓ BEFEKTETÉSNEK számít, köszönhetően a központi elhelyezkedésnek, illetve a 3 db külön bejáratú lakásnak, amelyek könnyen bérbe adhatóak ezáltal! Becsült bérleti díj egy évre kb. 5-6 millió Ft között várható. 3. lakás felújítási költségét is beleszámolva kb. 7-8% hozamnak felel meg!További információért hívjon bizalommal!
További adatok
Telekterület: -
Kert mérete: -
Erkély mérete: 8 m2
Felszereltség: -
Parkolás: -
Kilátás: udvari
Egyéb extrák:  
-
Hirdető adatai
Hirdető neve: Ingatlanmentor powered by Rock Home
Hirdető telefonszáma: +36 70 467 6871