Pest megye, Hévízgyörk
 

Ingatlan adatai
Irányár: 137 700 000 Ft
Típus: ház
Kategória: eladó
Alapterület: 254 m2
Fűtés: elektromos
Állapota: -
Szobák száma: 6
Építés éve: 2000
Szintek száma: -
Részletes leírás
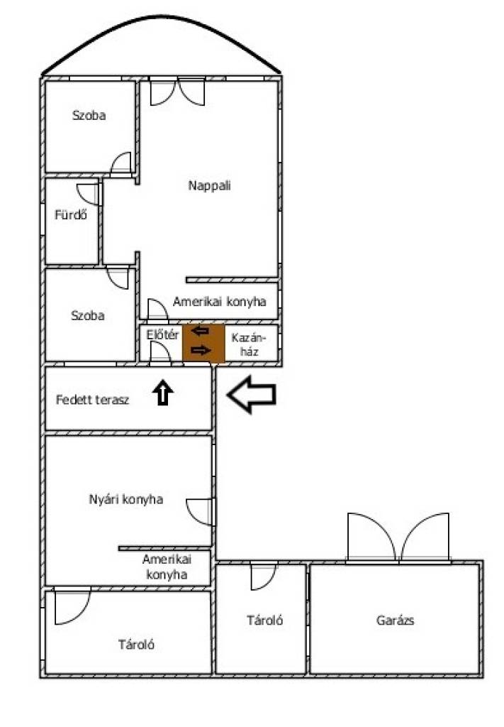
Eladó szépen karbantartott villa jellegű ingatlan, kivételes adottságokkalMegvételre kínálok egy 2000-ben téglából épült, folyamatosan karbantartott és korszerűsített, valódi villa karakterrel rendelkező ingatlant, költözés miatt.Az épület 2021 óta átfogó megújításon esett át, melynek során a tulajdonos kiemelt figyelmet fordított a gépészetre, a fűtési rendszer korszerűsítésére, festésekre és az elektromos hálózat fejlesztésére.A fűtés és hűtés 10 darab, modern, wifis klímával megoldott, a melegvízellátást új Ariston villanybojler biztosítja. Az ingatlan 3×16A elektromos betáplálással rendelkezik.Főépület:Két szintSzintenként kb. 127 m², összesen 254 m² lakótérAlsó szint:- nagyméretű amerikai konyhás nappali- hálószoba- gyerekszoba- fürdőszoba- kamraFelső szint:- dolgozószobák- vendégszoba- gardrób- külön WC és zuhanyzó- mozihelyiség motoros vetítővászonnalAz ingatlan belső és külső tereit eredeti, kézzel kidolgozott gipszstukkók, klasszikus oszlopos megoldások és íves nyílászárók teszik különlegessé, amely valódi villa megjelenést biztosít.Telek és további épületek:- 781 m² saját telek- 85 m²-es különálló hátsó épület (felújítandó, bővíthető)- 50 m²-es 2 állásos garázs, amelyből további lakótér is leválaszthatóTöbbgenerációs együttélés vagy akár 3 különálló lakóegység kialakítása is lehetséges, adott esetben pedig társasházzá is alakítható!Az utcafronton kényelmes parkolási lehetőség áll rendelkezésre, akár 4 autó számára is. INGYENES hitel tanácsadás!CSOK Ügy intézés!3% -os OSP hitel ügyintézés!BANKFÜGGETLEN hitelcentrumunk minden elérhető bank és hitelintézet ajánlatát versenyezteti az Ön kedvéért, ráadásul DÍJMENTESEN.Önnek nincs más dolga, mint elbeszélgetni munkatársunkkal, aki a hallott információk alapján versenyre hívja a bankokat, hogy Ön hosszú távon is a legjobb konstrukciót kaphassa. A legjobb ajánlatokból végül Ön választhatja ki a nyertest.Munkatársaink sokéves szakmai tapasztalattal várják Önt, előre egyeztetve akár a normál munkaidő után is.Amennyiben hirdetésem felkeltette érdeklődését, várom hívását, akár hétvégén is! S.S.
További adatok
Telekterület: 781 m2
Kert mérete: 781 m2
Erkély mérete: 24 m2
Felszereltség: -
Parkolás: -
Kilátás: udvari
Egyéb extrák:  
-
Hirdető adatai
Hirdető neve: GDN Ingatlanhálózat
Hirdető telefonszáma: +36-30-556-5226