Pest megye, Kóka
 

Ingatlan adatai
Irányár: 59 990 000 Ft
Típus: ház
Kategória: eladó
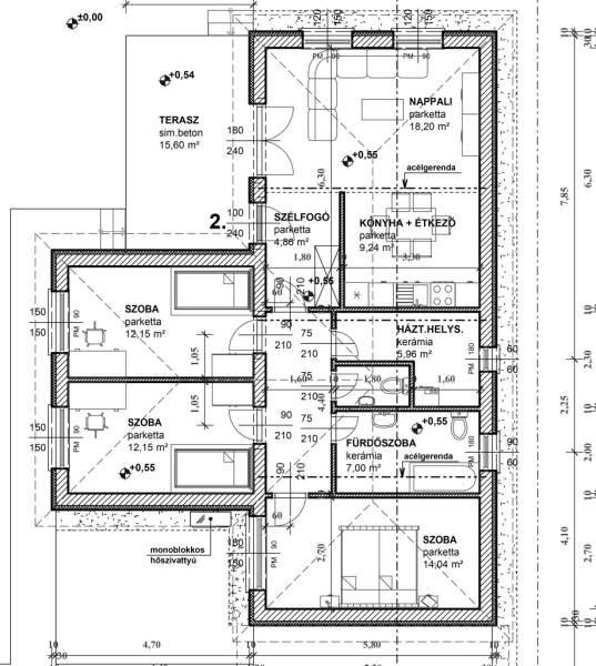
Alapterület: 92 m2
Fűtés: -
Állapota: új
Szobák száma: 4
Építés éve: 2026
Szintek száma: -
Részletes leírás
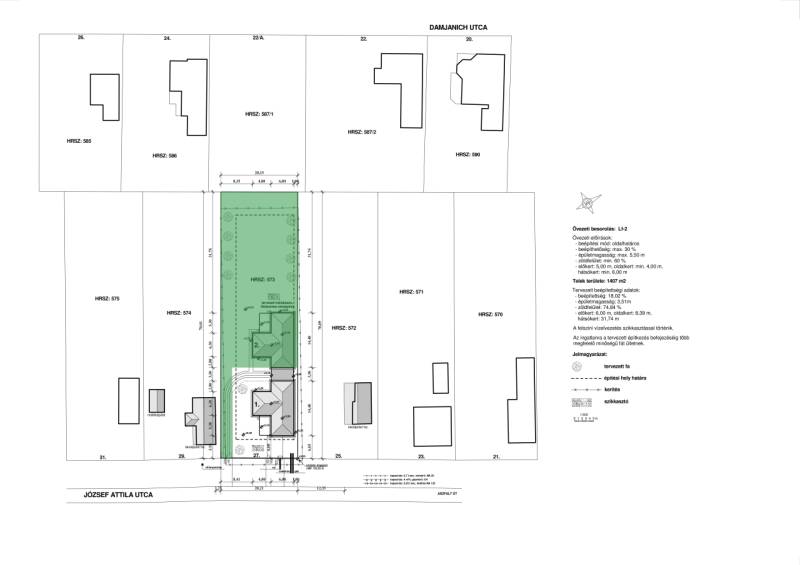
Kókán a József Attila utca 27. szám alatt, 1407 m2-es telkeken, újonnan épülő nettó 92,3 m2 nettó hasznos lakótérrel rendelkező, kulcsrakész ikerházfelek eladóakA fedett gépkocsibeálló az utcafronti házhoz tartozik, melynek kizárólagos használatú telekrésze 413 m2. A hátsó háznak 994 m2-es a kizárólagos használatú telekrésze.Az ingatlanok 30-as Nútféderes téglából épülnek, fa födémmel.A tető héjazata antracit betoncserép lesz, a homlokzatok 10cm Grafitos, a padló 10cm lépésálló, a födém 25cm ásványgyapot szigeteléssel lesz ellátva.A külső nyílászárók 6 légkamrás háromrétegű üveggel szerelt műanyag thermók lesznek.A fűtést hőszivattyús rendszer fogja ellátni, padlófűtéssel.Műszaki tartalom:-Csempe, járólap 3000 ft/m²-Meleg burkolat 3000 Ft/m²-Fürdőkád: 40.000.- Ft-Beltéri ajtók 32.000.- Ft. /db-Csaptelepek: 15.000.- Ft. /dbMagasabb árú választás is lehetséges a különbség finanszírozásával.Elektromos kiépítés:-Konnektorok szobákban: 3 db-Konnektorok nappaliban 4db + internet és kábeltv kiállás-Konnektorok konyhában: 6db-Világítás helyiségenként 1-1 db-Kábeltévé: Előkészítés-Kapumozgató elektronika: előkészítés-Riasztó: előkészítésAz utcafronti kerítés színezett zsalukővel, fa lécezéssel készül.INGYENES hitel tanácsadás, CSOK Plusz ügyintézés!BANKFÜGGETLEN hitelcentrumunk az összes elérhető bank és hitelintézet ajánlatát versenyezteti az Ön kedvéért, ráadásul DÍJMENTESEN.- Egyedi, bankfiókban nem elérhető kamat- és díjkedvezmények- Hitelképesség vizsgálat- Idő, energia és pénz megtakarítás- Teljes hivatali ügyintézésAmennyiben hirdetésem felkeltette az érdeklődését vagy egyéb információra van szüksége hívjon bizalommal!
További adatok
Telekterület: 994 m2
Kert mérete: 994 m2
Erkély mérete: 16 m2
Felszereltség: -
Parkolás: -
Kilátás: kertre néző
Egyéb extrák:  
-
Hirdető adatai
Hirdető neve: GDN Ingatlanhálózat
Hirdető telefonszáma: +36-70-606-2990