Pest megye, Szigetszentmárton
 

Ingatlan adatai
Irányár: 148 500 000 Ft
Típus: ház
Kategória: eladó
Alapterület: 312 m2
Fűtés: -
Állapota: -
Szobák száma: 3
Építés éve: 1993
Szintek száma: -
Részletes leírás
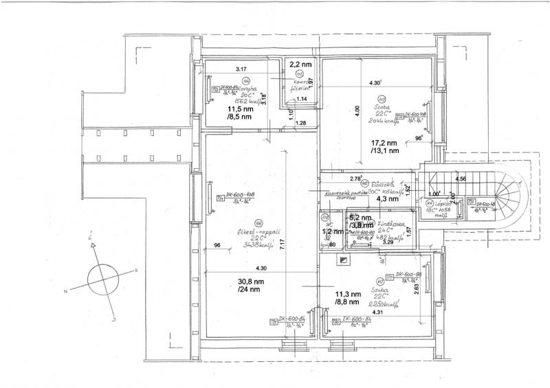
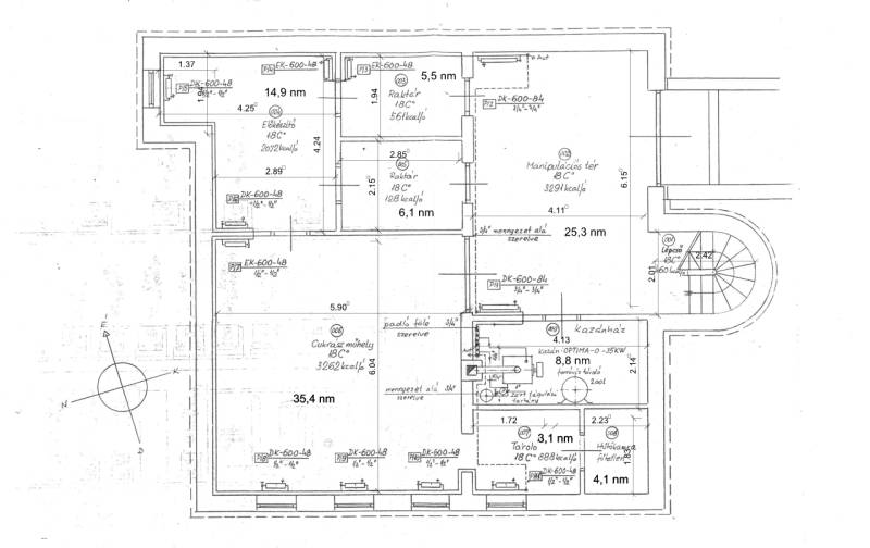
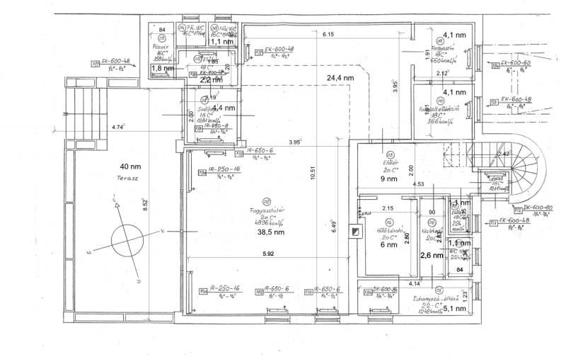
Eladó önálló családi ház vendéglátóegységgel!Szigetszentmártonban kínálunk megvételre egy nettó 312 nm alapterületű önálló családi házat 1218 nm-es telken. Az ingatlan jelenleg ételbárként üzemel, tulajdoni lap szerint : kivett lakóház, udvar, tároló, cukrászműhely, cukrászda besorolású és kialakítású. Ebből adódóan kíváló lehet más tipusú vállalkozás üzemeltetésére is, továbbá a tetőtéri lakás kiadása is bevételt generálhat.Azonban átalakítással tágas, több generáció együttélésére alkalmas családi ház lehet.Az ingatlan 1993-ban Porotherm téglából épült, 5 cm-es külső szigeteléssel.A földszinten melynek hasznos alapterülete: 106,6 nm + 40 nm terasz, és a pinceszinten 103,2 nm működik az ételbár, a tetőtérben egy 82,3 nm alapterületű lakás van kialakítva.A lakás alapterülete 82,3 nm. Beosztása-- előszoba,- nappali+ étkező,- konyha,- kamra,- hálószoba,- hálószoba,- fürdőszoba,- WC.A lakásrészben 2021-ben történt felújítás:- új burkolatok, fürdőszoba, konyhabútor új ajtókat kapott, új főzőlap, sütő, elszívó,- új klíma, új villanybojler,- az eredeti fa, dupla thermo üvegezésű nyílászárókat átfestették.A lakásnak külön mérőórái vannak.2021-ben a termelő részben végzett felújítások:- új műanyag nyílászárók, részleges padlófelújítás,- hűtőkamra ajtaját cserélték, új aggregátor,A fűtést és melegvizet gázkazán biztosítja radiátoros hőleadással.- ipari gázóra és ipari áram van.- az ingatlanban 2 db hűtő-fűtő klíma működik.A telken található még egy 60 nm-es épület, 2 autónak garázs+ tároló, tetőszerkezetét 2020-ban felújították.Az udvar térkövezett, több autónak beállási lehetőséget biztosítva.Az ingatlannak két utcáról van bejárata.Amivel segítjük az Ön ingatlanvásárlását:- ingyenes hitelügyintézés,- jogi háttér,- földhivatali ügyintézés,- energetikai tanúsítvány,- a vevő számára az ingatlanközvetítés ingyenes.Irodánk 30 éves szakmai tapasztalattal áll ügyfelei rendelkezésére!Várom szíves megkeresését!
További adatok
Telekterület: 1 218 m2
Kert mérete: 1 218 m2
Erkély mérete: 70 m2
Felszereltség: -
Parkolás: -
Kilátás: udvari
Egyéb extrák:  
-
Hirdető adatai
Hirdető neve: GDN Ingatlanhálózat
Hirdető telefonszáma: +36-70-269-5029