Pest megye, Hernád
 

Ingatlan adatai
Irányár: 89 900 000 Ft
Típus: ház
Kategória: eladó
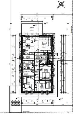
Alapterület: 110 m2
Fűtés: elektromos
Állapota: új
Szobák száma: 3
Építés éve: 2025
Szintek száma: -
Részletes leírás
Hernád központjához közel, egy 750 m²-es saroktelken kínálok eladásra egy 110 m²-es, új építésű, önálló családi házat. Az ingatlan 20% önerővel már lefoglalható. A ház vasalt beton alapra épül, Porotherm 30 X-therm Rapid téglából, Bramac cserépfedéssel. A homlokzat 15 cm Dryvit hőszigeteléssel és nemesvakolattal készül, a nyílászárók háromrétegű műanyag ablakok kő párkányokkal.A vételár a teljes kulcsrakész állapotot tartalmazza, beleértve a burkolatokat is 8.000 Ft/m² értékhatárig. A közművek közül a villany, a víz és a csatorna kerül bevezetésre. A ház három szobából, egy tágas nappaliból, fürdőszobából WC-vel, valamint egy különálló mellékhelyiségből áll. A fűtés korszerű elektromos rendszerrel és padlófűtéssel lesz megoldva, amelyet egy 8 kW-os napelemrendszer támogat; ennek köszönhetően a rezsiköltség minimális.Az ingatlan környezete rendezett és kiváló elhelyezkedésének köszönhetően a mindennapi élethez szükséges létesítmények – iskola, óvoda, gyógyszertár, orvosi rendelő, üzletek, buszmegálló és vasútállomás – gyalogosan vagy autóval 2–15 percen belül elérhetők.Ne hagyja ki ezt a remek lehetőséget, hiszen álmai otthona csak egy telefonhívásra van! Amennyiben az ingatlan a leírás és a fényképek alapján felkeltette érdeklődését, hívjon bizalommal további információért:Gáspár Kata +36 20 400 4035   
További adatok
Telekterület: 750 m2
Kert mérete: 750 m2
Erkély mérete: -
Felszereltség: -
Parkolás: -
Kilátás: -
Egyéb extrák:  
-
Hirdető adatai
Hirdető neve: Dabas Régió
Hirdető telefonszáma: 06204004035