Pest megye, Hernád
 

Ingatlan adatai
Irányár: 35 990 000 Ft
Típus: ház
Kategória: eladó
Alapterület: 75 m2
Fűtés: elektromos
Állapota: új
Szobák száma: 2+1
Építés éve: 2026
Szintek száma: -
Részletes leírás
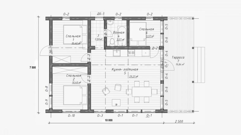
Hernádon, aszfaltozott, csendes utcában értékesítésre kínálok egy 75  m2-es könnyűszerkezetes családi házat.  A telek adottságaiból adódóan mérete a háznak:  7.5  méter széles  X  10 méter  hosszú. De lehet egyedileg hosszabb is a ház. A terasz 20 m2-es.   Az ingatlanban található 2 szoba, 1 hálószoba,  amerikai konyha, 1  fürdőszoba.  A közművek közül víz, villany, csatorna, gáz elérhető, bekötését a vevő kötteti be.  A fűtés elektromos infrapanelekkel, klímával megoldott, de külön megbeszélés szerint lehet más alternatíva is.  A telek 1800 m2-es.  Készpénzes ügyfeleknek eladó. A telek ára benne van az árban.  Megtelkinthető a telek:  06204004014
További adatok
Telekterület: 1 800 m2
Kert mérete: 1 800 m2
Erkély mérete: -
Felszereltség: -
Parkolás: -
Kilátás: -
Egyéb extrák:  
-
Hirdető adatai
Hirdető neve: Dabas Régió
Hirdető telefonszáma: 06204004014