Pest megye, Tura
 

Ingatlan adatai
Irányár: 86 200 000 Ft
Típus: ház
Kategória: eladó
Alapterület: 108 m2
Fűtés: egyéb
Állapota: új
Szobák száma: 4
Építés éve: 2026
Szintek száma: -
Részletes leírás
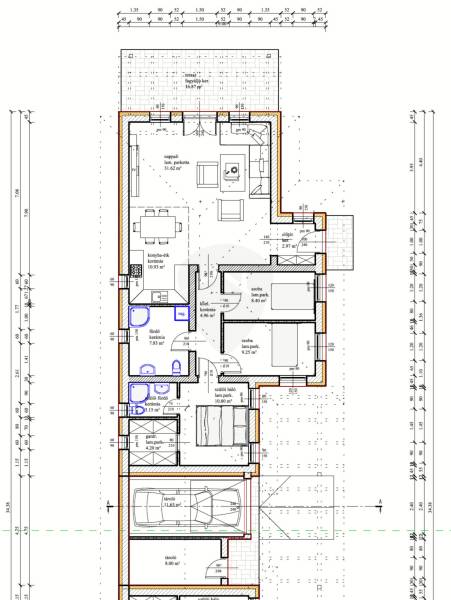
*** Szeretne új építésű környezetben élni a családjával egy modern új otthonban? Akkor ezt a lehetőséget ne hagyja ki! ***Tura közkedvelt részén egy újonnan megnyílt utcában kínálom eladásra egy új építésű ikerháznak a 2. lakását (hátsó), amely nettó 94,11 m2 lakórésszel + 16,87 m2 terasszal és 11,63 m2-es GARÁZZSAL fog rendelkezni. Az elosztása rendkívül PRAKTIKUS, hiszen tágas nappali + konyha kerül kialakításra, illetve a szülői hálószobához egy saját fürdőszoba és gardrób tartozik. A telek mérete összesen 832 m2, összközművesitett. Ez a méret kerül felosztásra a két épület között.Főbb tulajdonságok:- Porotherm 30-as TÉGLA + 10 cm-es grafitos szigetelés- Tető betoncserepet kap, a födém pedig 25 cm-es kőzetgyapot hőszigetelést- 3 rétegű műanyag nyílászárók, több ponton záródó bejárati ajtó- fűtésről KONDENZÁCIÓS gázkazán gondoskodik padlófűtésen keresztül, de igény szerint kérhető hőszivattyús fűtés (értékegyeztetés mellett)- Burkolatok, szaniterek, szerelvények saját igény szerint választhatóak mégKözös lakórész nem érintkezik, csak a tárolóval és a garázzsal kapcsolódnak egymáshoz az épületek. A lakóépület fenntartása ALACSONY KÖLTSÉGŰ lesz, köszönhetően a minőségi anyagok használatának.Tura egy szépen fejlődő település, több közintézmény, bevásárlási lehetőség, piac és egyéb üzlet is megtalálható.Budapestről az M3-as autópálya használatával 30-40 perc alatt elérhető a település autóval és tömegközlekedéssel egyaránt (busz, vonat).Várható befejezés 2026. III. és IV. negyedév.További információért hívjon bizalommal! Kedvező finanszírozásban is segítséget nyújtunk, így akár egy kézben tudhatja a teljes vásárlás folyamatát!
További adatok
Telekterület: 400 m2
Kert mérete: 400 m2
Erkély mérete: -
Felszereltség: -
Parkolás: -
Kilátás: utcai
Egyéb extrák:  
-
Hirdető adatai
Hirdető neve: Ingatlanmentor powered by Rock Home
Hirdető telefonszáma: +36 70 467 6871