Pest megye, Halásztelek
 

Ingatlan adatai
Irányár: 189 900 000 Ft
Típus: ház
Kategória: eladó
Alapterület: 280 m2
Fűtés: gáz (cirko)
Állapota: felújított
Szobák száma: 7+1
Építés éve: -
Szintek száma: -
Részletes leírás
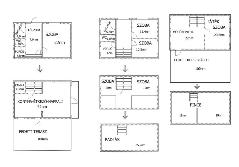
Megvételre kínálom ezt a Fantasztikus, akár több generációnak is alkalmas, felújított, szinteltolással, téglából épült, szigetelt, 280nm-es önálló, családiházat, 604nm telken, csendes utcában!A LEHETŐSÉGEK TÁRHÁZA!!!!Elosztása:-42nm Nappali-Konyha-étkező - 2 terasz 6 és 50nm!!!!!!- kamra- 5 hálószoba- 2 fürdő- 2 wc- 2 gardrób - 22nm mosókonyha- 20nm játszó szoba- 37nm alagsor /pince/- 35,2nm padlástérRadiátoros gázcirkós fűtés 2 db klíma Redőnyök és szúnyoghálókElektromos kapuAutó beállási lehetőségNehéz felsorolni minden előnyét.Jöjjön el nézze meg, megéri!!Családoknak, befektetésnek, üzleti célra egyaránt tökéletes!Közelben óvoda, iskola, játszótér, bevásárlási lehetőség, tömegközlekedés.Cégünk INGYENES, iroda és bank-független Hitel ügyintézéssel is rendelkezésére áll, nem csak nálunk vásárolt ingatlanokra!!Kérdés és-vagy időpont egyeztetés miatt hívjon bátran akár hétvégén is.Amennyiben nem tudom felvenni visszahívom
További adatok
Telekterület: 604 m2
Kert mérete: 604 m2
Erkély mérete: 56 m2
Felszereltség: -
Parkolás: -
Kilátás: -
Egyéb extrák:  
-
Hirdető adatai
Hirdető neve: Dream Credit Kft.
Hirdető telefonszáma: +36707798880