Budapest, X.kerület
Újhegy 

Ingatlan adatai
Irányár: 149 900 000 Ft
Típus: ház
Kategória: eladó
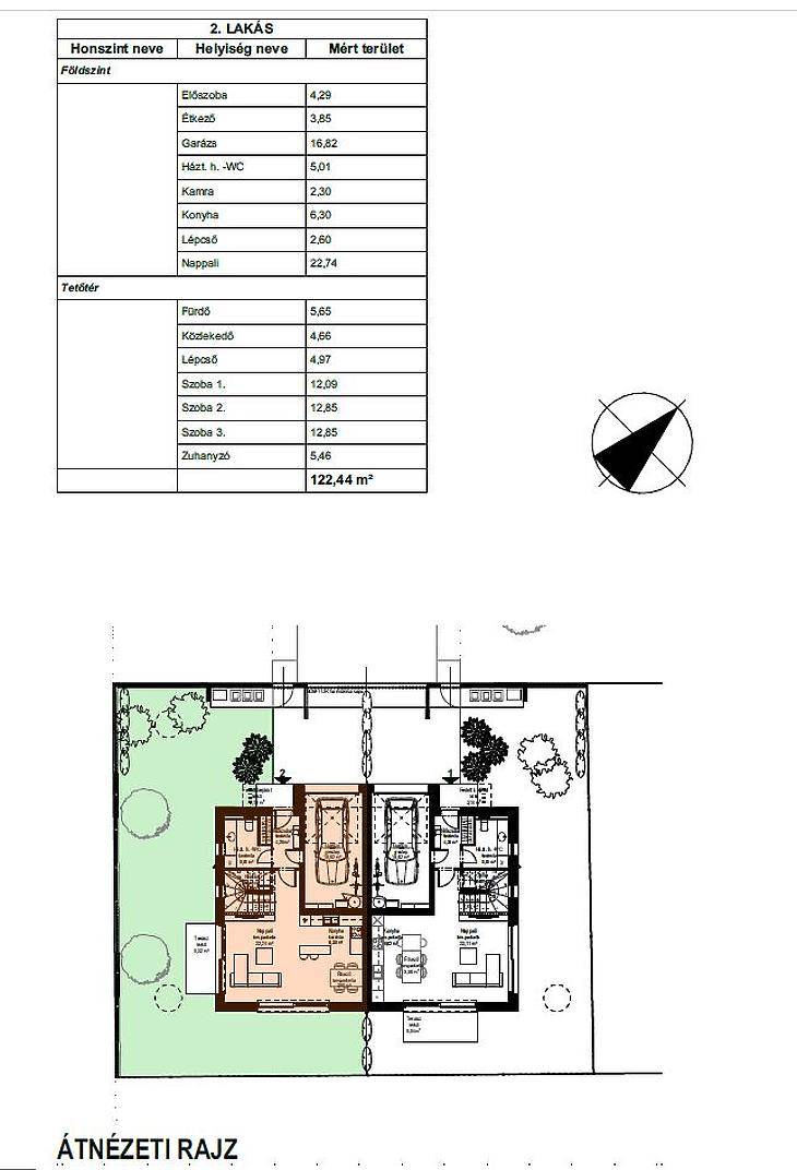
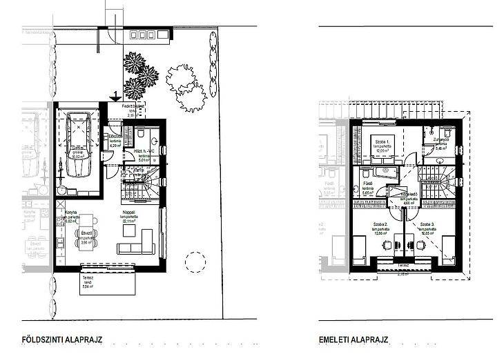
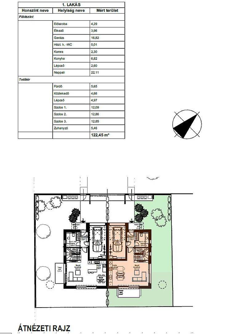
Alapterület: 122 m2
Fűtés: egyéb
Állapota: új
Szobák száma: 4
Építés éve: 2026
Szintek száma: -
Részletes leírás
ÚJÉPÍTÉSŰ SORHÁZ ELADÓ ÚJHEGYEN!122nm-es,4 szobás, 2 szintes sorház, 231nm-es telekkel!Eladásra kínálunk Újhegy egyik legjobb részén 2db jelenleg is épülő sorházat!Maga a ház 2 szintből fog állni és 4 szobából, jelenleg látvány tervek vannak róla és műszaki leírás.A házak kellemes hőérzetét levegős hőszivattyú berendezés fogja biztosítani, mely a padlóról, valamint a plafonról is egyaránt hűt-fűt.A projekt menedzser tervei szerint 2026 III. negyedévére fognak elkészülni és utána azonnal birtokba vehetőek.Az ingatlanokhoz tartozni fog egy-egy fedett garázs és kocsibeálló is.A 2 ingatlan társasházzá lesz nyilvánítva, ügyvédi telekmegosztással, így hitelezhető lesz.Infrastruktúrája kedvező ugyan is 10 perc sétára található tőle az újhegyi sétány, ahol minden megtalálható, ami a minden napi élethez szükséges: Spar, éttermek, dohánybolt, iskola, óvoda.Közlekedés szempontjából is kiváló 28-as villamos a 95-ös és a 195-ös buszmegálló 5 perc sétára található, a 185-ös, 85-ös és a 117-es buszmegálló szintén 5 perc sétára található.Az ár 149.900.000.- Ft / db.Az ingatlan 1/1 tulaj és tehermentes.Vevőink számára a közvetítés díjmentes.
További adatok
Telekterület: 231 m2
Kert mérete: 231 m2
Erkély mérete: -
Felszereltség: -
Parkolás: -
Kilátás: -
Egyéb extrák:  
-
Hirdető adatai
Hirdető neve: MPD Hungary Kft.
Hirdető telefonszáma: +3617808276