Budapest, III.kerület
 

Ingatlan adatai
Irányár: 113 000 000 Ft
Típus: lakás (tégla)
Kategória: eladó
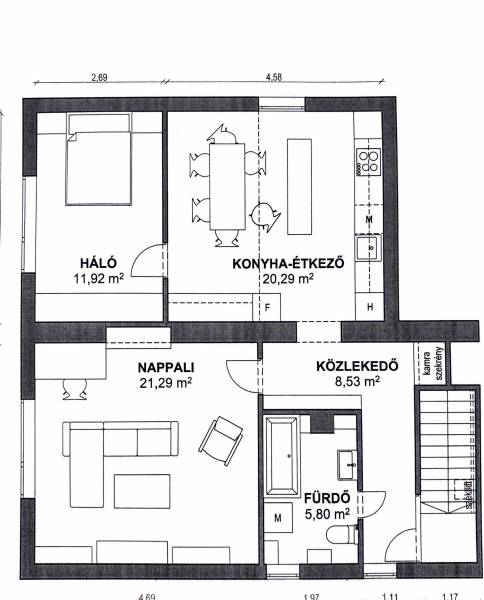
Alapterület: 74 m2
Fűtés: gáz (cirko)
Állapota: felújított
Szobák száma: 3
Építés éve: -
Szintek száma: 1
Részletes leírás
Eladásra kínálunk Budapest III. kerületében, Csillaghegyen egy csendes, kertvárosias környezetben található, első emeleti lakást egy mindössze négy lakásos társasházban. Az épület rendezett, nyugodt lakóközösséggel, ideális választás azok számára, akik zöldövezeti környezetben keresnek jól élhető otthont.A 74 négyzetméteres, felújított lakás jelenleg kétszobás kialakítású, azonban eredetileg háromszobás volt, így könnyedén visszaalakítható amerikai konyhás nappali és két hálószobás elrendezésre, illetve igény esetén további félszoba kialakítására is lehetőséget ad. Az ingatlan felújításon esett át, amely érintette a nyílászárókat, a burkolatokat, a konyhát és a fürdőszobát is.A lakás dél-keleti fekvésű, ennek köszönhetően világos, napfényes terei egész nap kellemes atmoszférát biztosítanak. A fűtést és a meleg vizet kombicirkó szolgáltatja, radiátoros hőleadással minden helyiségben, továbbá klímaberendezés is rendelkezésre áll.A lakáshoz tartozik egy megközelítőleg 200 négyzetméteres, privát használatú kert, amely kiválóan alkalmas pihenésre, kikapcsolódásra vagy akár családi programokra. Emellett egy 4 négyzetméteres alsó terasz is a rendelkezésre áll. Parkolás az udvaron belül két autó számára biztosított, az utcán pedig szintén könnyen megoldható. Az ingatlan nem ártérben helyezkedik el.A környék infrastruktúrája kiváló, a közlekedés gyors és jól szervezett, miközben a környezet megőrzi csendes, kertvárosias jellegét. A lakás ideális választás lehet családok, párok vagy akár befektetők számára.
További adatok
Telekterület: -
Kert mérete: -
Erkély mérete: 4 m2
Felszereltség: -
Parkolás: -
Kilátás: kertre néző
Egyéb extrák:  
-
Hirdető adatai
Hirdető neve: Horland Ingatlan
Hirdető telefonszáma: +36204777632