Pest megye, Törökbálint
 

Ingatlan adatai
Irányár: 450 000 Ft/hó
Típus: lakás (tégla)
Kategória: kiadó
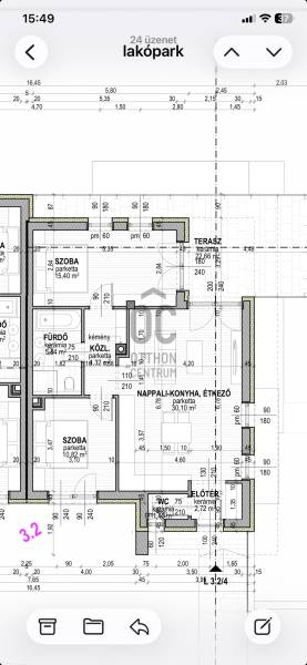
Alapterület: 71 m2
Fűtés: gáz (cirko)
Állapota: -
Szobák száma: 3
Építés éve: 2024
Szintek száma: -
Részletes leírás
Kiadó új építésű lakás Törökbálinton, Tükörhegyen – azonnal költözhető!Kivételes lehetőség Törökbálint egyik legmodernebb, legkedveltebb részén! A Balassi Bálint utcában, csendes, zöldövezeti környezetben kiadó egy 71 nm-es, nappali + 2 szobás, új építésű, bútorozatlan lakás azonnali költözéssel.A lakás főbb jellemzői:Modern, minimál dizájnTágas, világos nappali és kettő külön nyíló hálószoba23 nm-es terasz, mely ideális reggeli kávézáshoz vagy esti pihenéshezKorszerű légkondicionáló rendszer2 darab saját felszíni parkolóhely a lakáshoz tartozikÚj építésű, igényes lakóközösség egy csendes mellékutcábanA lakás kiválóan alkalmas családok, párok vagy akár otthoni irodát keresők számára is. A környék rendezett, barátságos, és Budapest autóval néhány perc alatt elérhető az M1/M7/M0 csomóponton keresztül.Bérleti díj: 450 e Ft /hóMinimum bérleti idő: 12 hónapKaució: 2 havi bérleti díjNe maradjon le erről a különleges lehetőségről – kérjen időpontot megtekintésre még ma!
További adatok
Telekterület: -
Kert mérete: -
Erkély mérete: 23 m2
Felszereltség: -
Parkolás: -
Kilátás: utcai
Egyéb extrák:  
-
Hirdető adatai
Hirdető neve: Otthon Centrum
Hirdető telefonszáma: +36 70 461 9816