Pest megye, Dunaharaszti
 

Ingatlan adatai
Irányár: 129 900 000 Ft
Típus: ház
Kategória: eladó
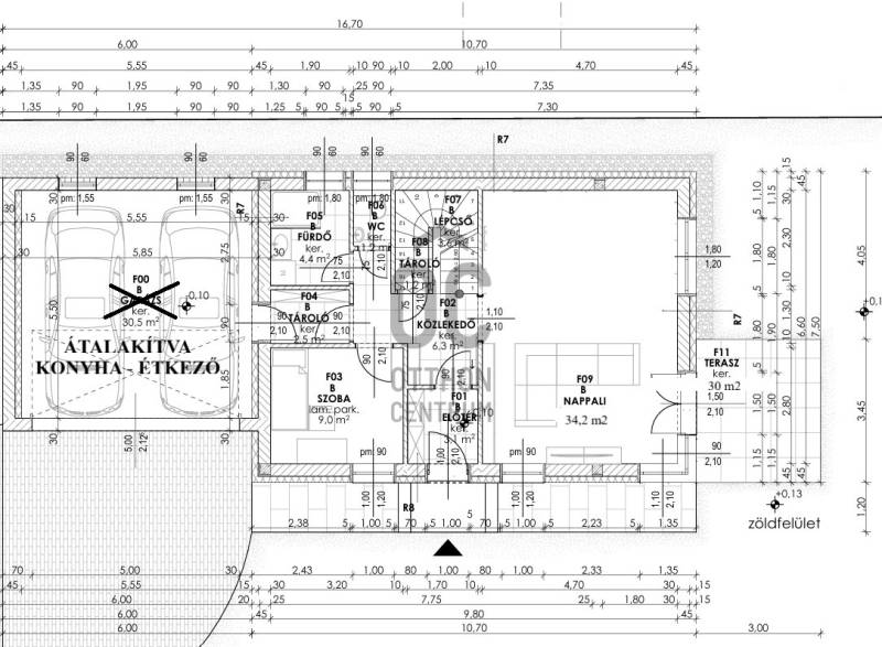
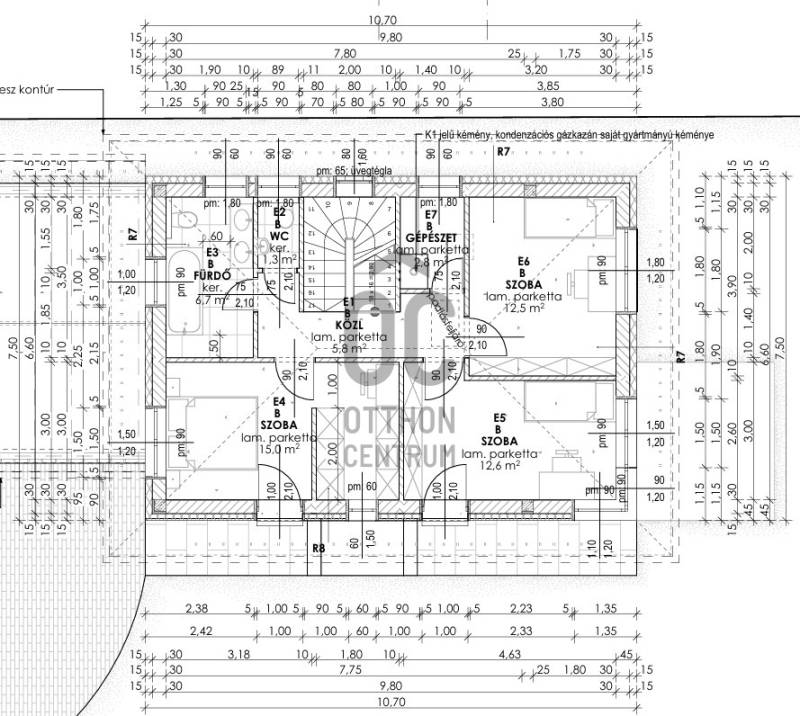
Alapterület: 149 m2
Fűtés: gáz (cirko)
Állapota: -
Szobák száma: 5
Építés éve: 2024
Szintek száma: -
Részletes leírás
MODERN OTTHON DUNAHARASZTIN – ahol a kényelem és a stílus találkozik!Egy mindössze 1 éves, exkluzív, 5 szobás családi ház várja új tulajdonosát Dunaharaszti egyik csendes, megújuló részén.Ha elegáns, korszerű és energiatakarékos otthont keres, itt minden adott, hogy jól érezze magát!Főbb jellemzők:- 174 m² lakótér + 650 m² saját kert- 5 szoba – 2 fürdőszoba – 2 autóbeálló- Tágas, napfényes nappali (45 m²) a családi pillanatokhoz- Modern konyha és étkező (35 m²) – a tervek szerint garázs volt de praktikus élettérként funkcionál- Az iker féllel csak a garázsnál kapcsolódik- Minőségi burkolatok- Riasztó- és kamerarendszer kiépítveEnergiahatékony kialakítás:-30-as tégla, 10 cm külső és 25 cm födémszigetelés- 3 rétegű műanyag nyílászárók redőnnyel és szúnyoghálóval- gáz cirkó fűtés radiátor + padlófűtés kombinációval- 3 kW napelem a fenntartható működésért- betoncserép fedés – időtálló és elegáns megoldásMiért különleges ez az otthon?✅ Újszerű, gondosan kivitelezett épület✅ Kényelmes, világos, tágas terek és nagy kert✅ Nyugodt, családbarát környék✅ Kiváló közlekedés Budapest felé✅ CSOK és Otthon Start hitel igénybe vehetőA ház építője megbízható, helyben ismert kivitelező, számos sikeres referenciával.A környéken iskolák, óvodák, boltok és minden, ami a mindennapokat kényelmessé teszi.Ne maradjon le erről a ritka lehetőségről!Ez a ház tökéletes választás mindazoknak, akik modern, energiatakarékos és nyugodt otthonra vágynak Dunaharaszti szívében.Érdeklődjön még ma, és találja meg álmai otthonát!
További adatok
Telekterület: 650 m2
Kert mérete: 650 m2
Erkély mérete: 30 m2
Felszereltség: -
Parkolás: -
Kilátás: -
Egyéb extrák:  
-
Hirdető adatai
Hirdető neve: Otthon Centrum
Hirdető telefonszáma: +36 70 469 3296