Pest megye, Budakalász
Budakalász 

Ingatlan adatai
Irányár: 399 000 000 Ft
Típus: kereskedelmi/ipari ingatlan
Kategória: eladó
Alapterület: 416 m2
Fűtés: -
Állapota: -
Szobák száma: -
Építés éve: -
Szintek száma: -
Részletes leírás
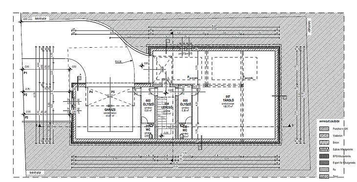
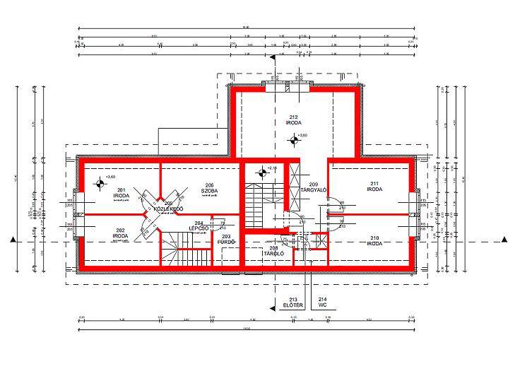
BUDAKALÁSZON ELADÓ EGY ÚJ ÉPÍTÉSŰ IRODAHÁZ!KÖRNYÉK:Budakalász központjához közel helyezkedik el, ahonnan a Szent István-telepi HÉV megálló könnyen, csupán 700 méternyi, 10 perces sétával közelíthető meg. Szintén pár perces sétával elérhető számos kisbolt és pékség is, de pár perc autóúttal könnyen elérhető például az Auchan, Aldi vagy más nagyobb bevásárlóközpontok.JELLEMZŐI:-Az alapterülete 415,63 nm, a pinceszint 176,24 nm, a földszint 122,9 nm, az emelet 116,49 nm.-A pinceszinten található egy 147 nm-es garázs és tároló, ami 6-8 kocsinak is parkolóhelyet biztosít.-Az épületben jelenleg 3 lakás található, ez igény szerint módosítható.-Plusz egy 56,46 nm-es terasz és egy 6,28 nm-es erkély.-Az épület 30-as POROTHERM téglából épült, 15 cm-es Dryvit szigeteléssel.-A tetőt terrán cserép fedi, ami kicserélhető terrán generon napelemes tetőcserépre.-A fűtésről minden lakáshoz tartozó, összesen 3 db kondenzációs gázkazán gondoskodik, igény szerint kicserélhető víz-levegős hőszivattyúkra.-A nyílászárók 3 rétegűek, fából készültek.-6 db villanyóra található, 3x20 Amper.-Több referenciamunkát is tudunk mutatni Budakalászon és környékén, ami az építtető által került kivitelezésre.FINANSZÍROZÁS:- Banki finanszírozással is megvásárolható, melyben irodánk ingyenes tanácsadással áll rendelkezésükre! VEVŐINK RÉSZÉRE A KÖZVETÍTÉS DÍJTALAN! A hirdetésben szereplő adatok tájékoztató jellegűek!
További adatok
Telekterület: -
Kert mérete: -
Erkély mérete: -
Felszereltség: -
Parkolás: -
Kilátás: -
Egyéb extrák:  
-
Hirdető adatai
Hirdető neve: MPD Hungary Kft.
Hirdető telefonszáma: +36205635501