Budapest, V.kerület
 

Ingatlan adatai
Irányár: 2 000 000 Ft/hó
Típus: kereskedelmi/ipari ingatlan
Kategória: kiadó
Alapterület: 326 m2
Fűtés: -
Állapota: -
Szobák száma: -
Építés éve: -
Szintek száma: -
Részletes leírás
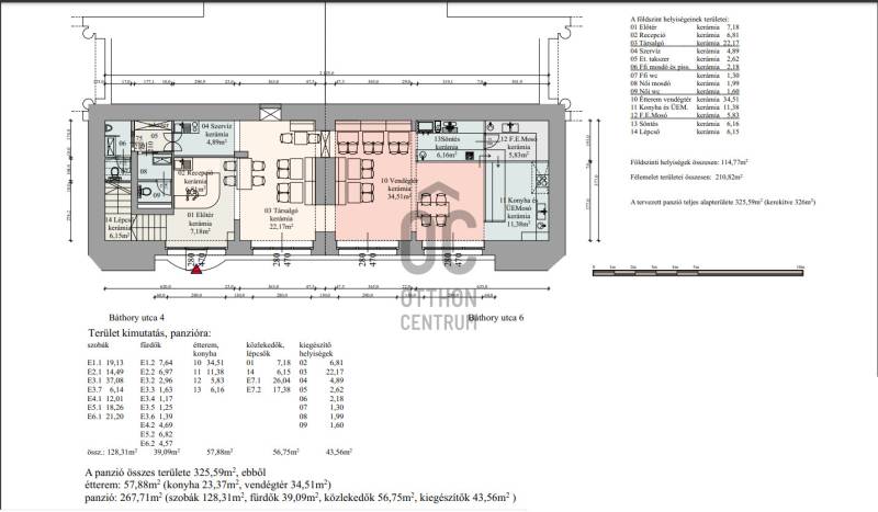
KIADÓ ÜZLETHELYISÉG - V. KERÜLETA 2-es metró, a 2-es villamos, buszok, trolik közvetlen közelében kínálunk egy belső 2 szintes üzlethelyiséget, mely nagy üvegportállal, bérelhető vendégfogadó terasszal várja új bérlőjét.Frekventált belvárosi elhelyezkedés az V. kerületben. A Parlament, a Duna-part és a Kossuth tér 1-2 percnyi sétára található.Az ingatlan jellemzői:– belső kétszintes kialakítás– össz. alapterület: 326 m² Alsó szint: 115 m²  – fogadótér  – vendégtér  – konyha rész (reggeliztetésre alkalmas) Felső szint: 211 m²  – 6 különálló apartman  – mindegyik saját fürdőszobával kialakítottHasznosítás:– jelenleg üzlethelyiségként kiadó– panzió funkció is opció lehet, de kizárólag a bérlő által lefolytatott engedélyezési eljárással– a belső kialakítás és funkció véglegesítése a bérlő feladataÁllapot, berendezés:– jelenlegi állapotában bérelhető– részben bútorozott azonban a meglévő bútorzat megegyezés tárgyát képezi- fűtés: gázkazán radiátoros hőleadókkal- az alsó szinten klíma egységek kerültek felszerelésre- az ingatlan külső és belső homlokzata védettség alatt áll, így az emeleti rész hűtését mobilklíma eszközökkel lehetséges kivitelezniKöltségek:– bérleti díj: 2.000.000 Ft + ÁFA / hó– kaució: 3 havi bérleti díj – 6.000.000 Ft + ÁFA– Közös költség: 300 Ft / m²Egyéb:– hosszú távra kiadó– kifejezetten ideális befektetési, szálláshely-fejlesztési célraAmenniyben érdekes lehet Önnek az ingatlan, kérem keressen feltüntetett elérhetőségeimen.
További adatok
Telekterület: -
Kert mérete: -
Erkély mérete: -
Felszereltség: -
Parkolás: -
Kilátás: -
Egyéb extrák:  
-
Hirdető adatai
Hirdető neve: Otthon Centrum
Hirdető telefonszáma: +36 70 461 9246