Budapest, XV.kerület
 

Ingatlan adatai
Irányár: 84 990 000 Ft
Típus: lakás (újépítésű)
Kategória: eladó
Alapterület: 62 m2
Fűtés: -
Állapota: új
Szobák száma: 3
Építés éve: 2026
Szintek száma: -
Részletes leírás
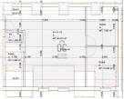
Megvételre kínálunk a XV. kerületben újépítésű lakásokat!Az ingatlan osztatlan közös tulajdon, ügyvédi megosztással. A most épülő házban 3 szinten 8 lakás kerül kialakításra, 39 m2 - 60 m2 közötti méretekben.Nappali plusz egy hálószobás és nappali plusz két hálós kialakítással.A várható birtokbaadás 2026 év vége.Lakások jellemzői:30-as porotherm téglából épül, amelyet egy 12 cm-es szigeteléssel is ellátnak majd.A tetőszerkezet Terrán Zenit betoncserepet kap, a bádogos szerkezet pedig Lindab lemezből fog készülni.BURKOLATOK• nappaliban és a szobákban többféle színből választható, esztétikus, 8 mm vastag, és min. 32-es kopásállóságú laminált padlóburkolat kerül beépítésre fehér színű szegőléccel. 6000 Ft/m2 ár ig (tartalmazza a burkolatváltókat, és szegélyléceket)• fürdőszoba/előtér: választható magas minőségű csempeburkolat 8000Ft/m2 ár ig.(tartalmazza a fugát, élvédőket, szilikont)• WC: minőségi padló és falburkolat 2,10m magasságig csempeburkolat ,8000Ft/m2 ár ig.(tartalmazza a fugát, élvédőket, szilikont)• háztartási helyiség/tároló/garázs: minőségi padló greslap burkolat ,4000Ft/m2 ár ig.(tartalmazza a fugát, élvédőket, szilikont)• Terasz: megbízható, esztétikus megjelenésű csúszás álló és fagyálló Gres lap, min. R10-es csúszásgátlással 8000Ft/m2 ár ig.(tartalmazza a fugát, szilikont)SZANITEREK, SZERELVÉNYEK:- SCHWAB/SCHELL vagy ezzel egyenértékű, víztakarékos beépített tartályos, konzolos WC, WC-csészén keresztül kialakított elszívással- Porcelán mosdó- Rozsdamentes acél kézmosó csaptelep- Rozsdamentes acél zuhany csaptelep- Modern, egyedi mosdó + kézmosó- Ergonomikus kád alapvetően 170*70 vagy 160*70 méretben- Akril tálcás zuhany (egyedi megállapodás alapján eltérés lehetséges)Fűtés, hűtés, melegvíz:A használati melegvíz ellátásra a központi fűtési helyiségben takarékos központi meleg víz termelést (levegő-víz hőszivattyúval fűtött közvetett fűtésű tárolók) tervezünk.A hűtés-fűtés és a használati melegvíz előállítása lakásonként központi melegvíz készítővel történik. A vízmérés fogyasztói mérővel, épületen belül, lakásonként különválasztva megoldott, hideg és melegvíz mérőórákkal.Az épület tervezése során nagy figyelmet fordítottunk a környezetvédelemre és a megújuló energiaforrások hatékony kihasználására, szem előtt tartva a leendő lakók kényelmét és kedvező rezsi költségét. A tervezett hőszivattyú a hmv mellett a lakások fűtéséről is gazdaságosan tud gondoskodni, a tervezett padló fűtésnek köszönhetően.A fürdő helyiségekben elektromos fűtőbetéttel ellátott törölközőszárító radiátor kerül elhelyezésre, fehér színben.A lakások még jobb komfortjának érdekében a fűtéshez/hűtéshez kiegészítő oldalfali fan coil is kapcsolódik lakószobákban, nappaliban.A hőszivattyúk saját automatika egységeikkel a külső hőmérséklet függvényében változó hőmérsékletű vizet állítanak elő.Az előbbi rendszerre épülnek a padlófűtési, körök termomotoros szelepei, melyeket nappaliban fali termosztátokról vezérlünk (hűtési esetben páratartalom érzékelő korlátozza a hűtési szelepeket, igény esetén felár ellenében helyiségenkénti vezérlés és okosotthon rendszer alakítható ki);A riasztó előkészítése minden lakáshoz biztosított.Az ablakkal nem rendelkező fürdőszobákban időkapcsolós páraelszívó ventilátorok vannak elhelyezve.A fűtés és HMV ellátásról 2 db méretezett PANASONIC/Daikin hőszivattyú gondoskodik
További adatok
Telekterület: -
Kert mérete: -
Erkély mérete: -
Felszereltség: -
Parkolás: -
Kilátás: utcai
Egyéb extrák:  
-
Hirdető adatai
Hirdető neve: Otthon Centrum
Hirdető telefonszáma: +36 70 465 7026