Tolna megye, Szekszárd
 

Ingatlan adatai
Irányár: 31 500 000 Ft
Típus: lakás (tégla)
Kategória: eladó
Alapterület: 51 m2
Fűtés: gáz (konvektor)
Állapota: -
Szobák száma: 3
Építés éve: 1980
Szintek száma: -
Részletes leírás
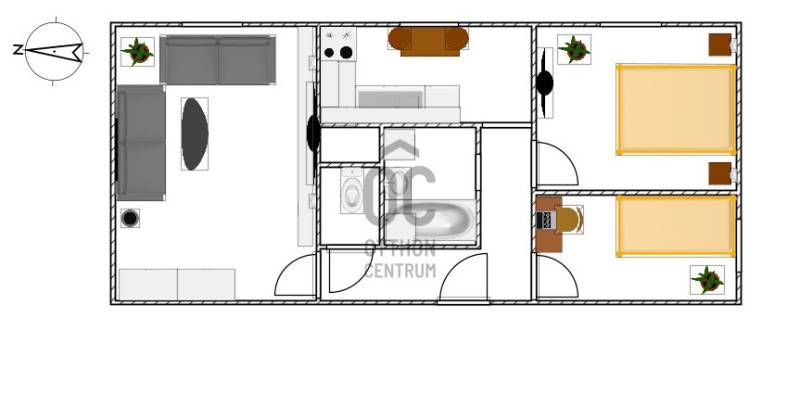
A lakás egy szigetelt homlokzatú (15 cm), rendezett társasházban található.- Fűtését gázkonvektorok, a meleg vizet egy 120 literes gázbojler biztosítja. - A külső nyílászárók korszerű, hőszigetelt műanyag ablakok, melyeket redőny is véd.- Az ingatlan két és félszobás elrendezésű:- tágas, 18 m²-es nappali laminált padlóval,- 10,5 m²-es hálószoba, valamint egy 6,7 m²-es félszoba, - mindkettő kisszoba parkettával burkolva.- A falak frissen fehérre festettek. - A fürdőszoba kádas, a mellékhelyiség külön helyiségben kapott helyet, a mosógép számára a fürdőben van kialakított hely. - A lakás a fotókon látható ingóságokkal együtt kerül értékesítésre. - A közös költség mindössze 8.650 Ft.- Parkolni díjmentesen lehet a ház előtt, a lépcsőház takarítását külsős szolgáltató végzi.Környék és elhelyezkedés:A Bottyán-hegyi lakónegyedben található, csendes, tiszta levegőjű környezetben. Autóval és helyi busszal is könnyen megközelíthető. A közelben játszótér és kisbolt is megtalálható, így a mindennapi bevásárlás egyszerűen megoldható.Kedves Ügyfelünk, az ingatlanról videót is készítettünk. Ha ezt a hirdetést az Otthon Centrum weboldalán nézi, akkor a videóra a képek után tud kattintani. Ha egy másik weboldalon találta ezt a hirdetést, kérem nyissa meg az Otthon Centrum weboldalát, kattintson a „Regisztrációs szám keresése” menüpontra, és írja be ezt a regisztrációs számot a keresőbe: H510635 Itt meg tudja tekinteni az ingatlanról készült videót. Vagy írjon nekem, és szívesen elküldöm a videót.Hitelre van szüksége?Kollégám díjmentes hitelügyintézéssel és személyre szabott ajánlatokkal áll rendelkezésére.Megtekintés egyeztetéséhez kérem, a hirdetésben megadott elérhetőségen keressen! Ha nem tudom felvenni, visszahívom.Eladó tégla lakás, 3 szoba, gázkonvektoros fűtéssel, új nyílászárókkal – OC H510635
További adatok
Telekterület: -
Kert mérete: -
Erkély mérete: -
Felszereltség: -
Parkolás: -
Kilátás: utcai
Egyéb extrák:  
-
Hirdető adatai
Hirdető neve: Otthon Centrum
Hirdető telefonszáma: +36 70 461 9696