Budapest, XV.kerület
 

Ingatlan adatai
Irányár: 149 900 000 Ft
Típus: lakás (újépítésű)
Kategória: eladó
Alapterület: 147 m2
Fűtés: -
Állapota: új
Szobák száma: 6
Építés éve: 2026
Szintek száma: -
Részletes leírás
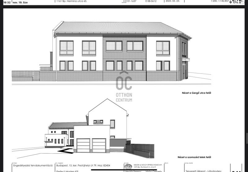
Most még hozzáférhet! – Eladó Pestújhely egyik legjobb részén egy exkluzív, kétszintes lakásBudapest XV. kerületében, Pestújhelyen, egy 147 m²-es, nappali + 5 szobás, modern, újépítésű, 1. emeleti, 2 szintes lakás eladó 4 lakásos társasházban, 25,5 m²-es nagyméretű erkéllyel!A lakás világos, tágas és exkluzív belső terekkel rendelkezik, modern dizájnnal és kiváló beosztással – ideális nagyobb családoknak, akik hosszú távú, minőségi otthont keresnek.ElrendezésAlsó szint (1. emelet – 88,5 m²):Tágas nappali amerikai konyhával3 külön nyíló szoba1 fürdőszoba1 külön WC kézmosóval26,73 m²-es erkély gyönyörű kertvárosi panorámávalFelső szint:2 külön nyíló szoba1 fürdőszoba WC-velPrémium műszaki tartalom – kompromisszummentes minőségGépészet:Modern hőszivattyús rendszerPadlófűtés + mennyezetfűtésMennyezethűtésFan-coil rendszerAriston okos melegvíz-rendszerAA–B energetikai besorolás → alacsony rezsi, maximális kényelemÉpítőanyagok és kialakítás:3 rétegű VEKA nyílászárók12 cm Dryvit homlokzati szigetelés25 cm tetőtéri szigetelésSilka hanggátló falak → kivételes csendModern burkolatok és beltéri ajtókLetisztult, modern építészeti stílusAz ingatlan állapota és lehetőségekÚjépítésű, tehermentesIgénybe vehető a 3%-os hitellehetőségA burkolatok, festés és szaniterek választhatók – saját ízlés szerint alakíthatók2026 év végéig birtokba vehetőKiváló környék – minden a közelbenBolt, iskola, óvoda, orvosi rendelő pár perc sétáraCsendes, rendezett, biztonságos utcaKiváló tömegközlekedés, gyors belvárosi elérésKertvárosi hangulat és központi elhelyezkedés ritka kombinációjaTovábbi extrákA lakáshoz tartozik (kötelezően vásárolandó :Garázs: 8 000 000 Ft vagy Kocsibeálló: 4 000 000 FtSaját, önálló, zárható tároló: 4 000 000 FtMiért különleges ez az ingatlan?Ez a lakás nem csupán egy modern, tágas otthon – magas műszaki tartalmú, értékálló befektetés Pestújhely legkedveltebb részén.Amennyiben felkeltette érdeklődését,várom hívását vagy üzenetét további információért és megtekintési időpont egyeztetéséhez.Krasznai IzabellaOtthon tanácsadó
További adatok
Telekterület: -
Kert mérete: -
Erkély mérete: 27 m2
Felszereltség: -
Parkolás: -
Kilátás: kertre néző
Egyéb extrák:  
-
Hirdető adatai
Hirdető neve: Otthon Centrum
Hirdető telefonszáma: +36 70 388 5056