Budapest, XXII.kerület
 

Ingatlan adatai
Irányár: 65 900 000 Ft
Típus: lakás (tégla)
Kategória: eladó
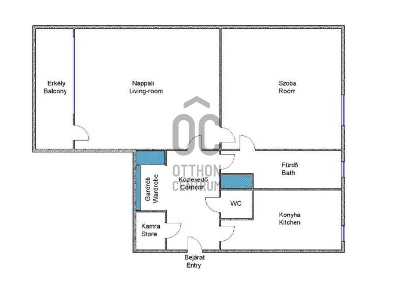
Alapterület: 55 m2
Fűtés: gáz (konvektor)
Állapota: -
Szobák száma: 2
Építés éve: 1978
Szintek száma: -
Részletes leírás
Világos, jó elrendezésű lakás remek lehetőségekkel!Eladásra kínálunk Nagytétényben egy 55 m²-es, erkélyes lakást, jó elrendezéssel és kedvező adottságokkal.A ház rendezett, karbantartott, közepes állapotú, a lépcsőház tiszta.Az erkély a nappaliból nyílik, tökéletes hely egy kávéhoz vagy pihenéshez. Nagyon jó adottságú, igény szerint könnyen otthonossá alakítható.A lakás világos, jól tagolt, jó szerkezeti alapokkal rendelkező ingatlan, amely állapotából adódóan kiváló lehetőséget kínál az új tulajdonosnak, hogy saját ízlése szerint modern, otthonos életteret alakítson ki.A nappali északnyugati, a hálószoba délkeleti tájolású, így a lakás egész nap természetes fényben fürdik.A tágas, kádas fürdőszoba két bejárattal is megközelíthető (az előszobából és a hálóból), ami kényelmes és praktikus megoldás, a WC külön helyiségben van. A helyiségekhez látványtervek is készültek, amelyek segítenek könnyen elképzelni az új otthon leendő hangulatát és kialakítását.Az ablakok korszerű műanyag nyílászárók, a fűtés konvektoros, a közös költség mindössze 15.900 Ft, és a lakáshoz közös tároló is tartozik.Közlekedés szempontjából is kedvező elhelyezkedésű:33, 133E és 973-as buszjáratok, valamint a Barosstelep és Kastélypark vasútállomások a közelben.A parkolás ingyenes.Az ingatlan per- és tehermentes, megfelel az Otthon Start feltételeinek, és hosszú távú kiadásra is kiváló befektetési lehetőséget kínál.
További adatok
Telekterület: -
Kert mérete: -
Erkély mérete: 4 m2
Felszereltség: -
Parkolás: -
Kilátás: utcai
Egyéb extrák:  
-
Hirdető adatai
Hirdető neve: Otthon Centrum
Hirdető telefonszáma: +36 70 388 6036