Borsod-Abaúj-Zemplén megye, Miskolc
 

Ingatlan adatai
Irányár: 24 900 000 Ft
Típus: lakás (tégla)
Kategória: eladó
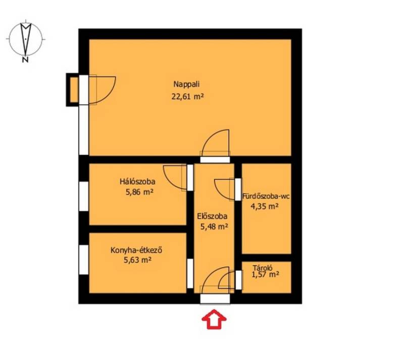
Alapterület: 43 m2
Fűtés: gáz (konvektor)
Állapota: -
Szobák száma: 1+1
Építés éve: 1970
Szintek száma: 4
Részletes leírás
ELADÓ! Miskolc, Bulgárföld, Stadion utcai LAKÁS!!!*négyemeletes tégla társasház 4.emelet (folyamatosan karbantartott, beázásmentes tető, nincs zaj fölötted)*biztonsági bejárati ajtó, hőszigetelt műanyag ablakok*padozat: hidegburkolat, parketta*modern konyhabútor, gáztűzhely, villanysütő*fürdőszobában kád, a melegvizet gázátfolyós vízmelegítő biztosítja*az előszobából nyílik a konyha-tároló-fürdőszoba-háló-nappali (össz:43m2)*a világos nappaliból franciaerkély*fűtés: konvektorosKarnyújtásnyira megtalálható minden, (üzletek, iskolák, gyógyszertár, villamos-, buszmegálló, szolgáltatók, sportolási lehetőség, Bükkben túrázás) ami a mindennapi élethez szükséges.Rugalmasan, időpont egyeztetéssel tudom mutatni, hívjon bátran!Igény szerint INGYENES BANKfüggetlen pénzügyi szakértővel, ügyvédi kapcsolattal is tudjuk segíteni Ügyfeleinket.Van eladó, vagy kiadó ingatlana? Bízza rám, szakszerűen értékesítem.
További adatok
Telekterület: -
Kert mérete: -
Erkély mérete: -
Felszereltség: -
Parkolás: -
Kilátás: kertre néző
Egyéb extrák:  
-
Hirdető adatai
Hirdető neve: GDN Ingatlanhálózat
Hirdető telefonszáma: +36-70-609-9244