Hajdú-Bihar megye, Hajdúsámson
 

Ingatlan adatai
Irányár: 55 000 000 Ft
Típus: ház
Kategória: eladó
Alapterület: 84 m2
Fűtés: -
Állapota: új
Szobák száma: 4
Építés éve: 2026
Szintek száma: -
Részletes leírás
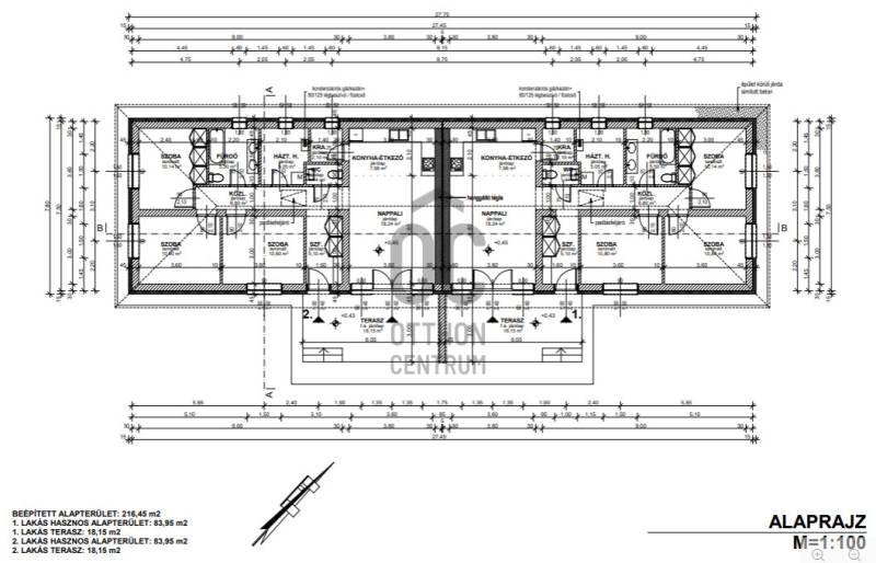
A Szűcs utca közelében új építésű ikerház eladóÚj építésű ikerházak Sámsonkertben, kedvező áron eladók!Debrecen vonzáskörzetében, Debrecenből 4 sávos úton megközelíthető Sámsonkertben12 db ikerház épül.Az ingatlanokhoz 300-400 nm-es önálló telekrész tartozik, az ikerházak nettó alapterülete83 nm, mindegyikhez 18 nm terasz tartozik.Főbb jellemzők:- POROTHERM 30-as tégla falazat- 15 cm homlokzati hőszigetelés- cserép tetőhéjazat- 3 rétegű üvegezésű műanyag ablakok- hőszivattyús fűtés, padlófűtésen keresztül- nappali-amerikai konyha-étkező + 3 hálószoba- minden lakóegység önálló házi vízművel rendelkezikVárható átadás 2026. 12. 31.
További adatok
Telekterület: 300 m2
Kert mérete: 300 m2
Erkély mérete: 18 m2
Felszereltség: -
Parkolás: -
Kilátás: -
Egyéb extrák:  
-
Hirdető adatai
Hirdető neve: Otthon Centrum
Hirdető telefonszáma: +36 70 461 9356