Pest megye, Halásztelek
 

Ingatlan adatai
Irányár: 204 000 000 Ft
Típus: ház
Kategória: eladó
Alapterület: 230 m2
Fűtés: gáz (cirko)
Állapota: -
Szobák száma: 9
Építés éve: 1973
Szintek száma: -
Részletes leírás
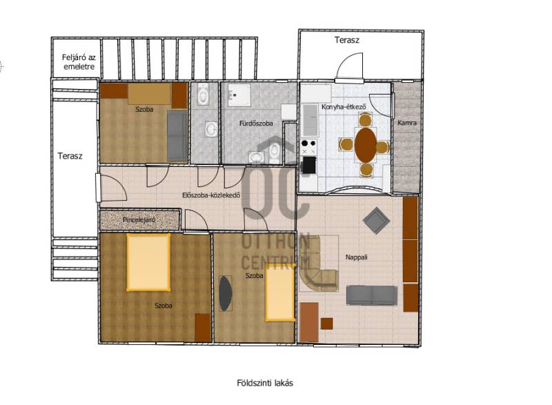
Eladásra kínálok Halásztelken, játszótér szomszédságában, csendes, mégis frekventált elhelyezkedésű utcában egy igényesen felújított, háromszintes, kétlakásos családi házat, amelynek alagsorában jelenleg bejáratott cukrászat működik.Az ingatlan több generáció együttélésére is kiválóan alkalmas, de befektetésnek is remek választás: az alsó szint akár önálló lakássá alakítható, így összesen három különálló lakóegység is kialakítható.A 575 m²-es, gondozott telken álló, 1973-ban épült ház masszív, 50 cm vastag falakkal készült, és a teljes körű felújítás során korszerű szigetelést is kapott, így rezsije rendkívül alacsony.A ház elosztása:-Földszinti lakás: tágas nappali, 3 hálószoba, külön konyha, kamra, fürdőszoba, WC, és hátsó terasz.-Emeleti lakás: nappali + 4 szoba, loggia, étkezős konyha, fürdőszoba.-Alagsor: jelenleg cukrászatként működik, teljes infrastruktúrával, 3x50 A árammal, de könnyedén lakóegységgé alakítható.-A fűtésről gázkazán és vegyes tüzelésű kazán is gondoskodik. A felújítás során új nyílászárók, burkolatok, gépészet és modern hőszigetelés került beépítésre.-A kertben több autó számára kényelmes parkolási lehetőség, illetve hangulatos terasz és pihenő kapott helyet.-A ház elhelyezkedése ideális: játszótér, bolt, óvoda, iskola és buszmegálló pár perc sétával elérhető.Ez a hirdetés az Otthon Centrum Felező portfóliójának része, melyről bővebb információt a http://www.oc.hu/felezocsomag oldalon talál.Megtekintéssel kapcsolatban keressen bizalommal! Hitelre is vásárolna? Bankfüggetlen hitelügyintéző kollégáim díjmentesen segítenek a legkedvezőbb megoldás megtalálásában.Ez az ingatlan a \"Felező csomag\" megbízási portfólióhoz tartozik. Részletek az Otthon Centrum weboldalán.
További adatok
Telekterület: 575 m2
Kert mérete: 575 m2
Erkély mérete: 20 m2
Felszereltség: -
Parkolás: -
Kilátás: -
Egyéb extrák:  
-
Hirdető adatai
Hirdető neve: Otthon Centrum
Hirdető telefonszáma: +36 70 388 5256