Pest megye, Diósd
 

Ingatlan adatai
Irányár: 299 000 000 Ft
Típus: ház
Kategória: eladó
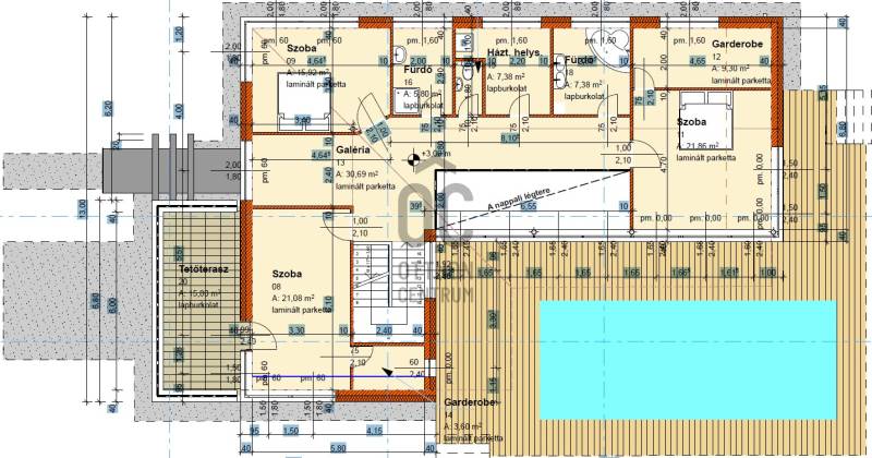
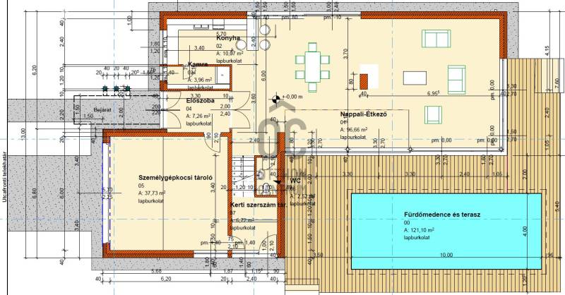
Alapterület: 290 m2
Fűtés: egyéb
Állapota: -
Szobák száma: 4
Építés éve: 2019
Szintek száma: -
Részletes leírás
Diósdligeten egy igazán különleges LUXUS családiház várja új tulajdonosát az Árpádház-lakóparkban! Építészetileg egyedi megoldásokkal, letisztult formavilággal, a 2019-ben épült otthon tágas, világos terekkel, nagy üvegfelületekkel rendelkezik, így lenyűgöző panoráma biztosítja új tulajdonosa kényelmét. Ideális választás akik egy modern és luxus otthonra vágynak. Ez a családiház nem csupán egy lakóhely, hanem egy életstílus, ahol a város közelsége és a természet harmóniája találkozik. Ennek a két szintes ingatlan alapterülete 290 nm, míg a telek mérete 973 nm és rendkívüli panorámával rendelkezik. Így bőséges helyet biztosít a családi élethez és a kikapcsolódáshoz. A házban négy tágas szoba található és két fürdőszoba szolgálja a kényelmet, így a családtagok számára mindig elegendő hely áll rendelkezésre a napi rutinhoz. Az egyik szobához tartozó 15,8 nm-es terasz tökéletes helyszín a reggeli kávézáshoz vagy a baráti összejövetelekhez, ahonnan csodás panoráma nyílik a környező tájra. Az ingatlan kiváló állapotban van, modern fűtési és hűtési megoldásokkal, beleértve a klímát is, amely biztosítja a kellemes hőmérsékletet az év bármely évszakában. Továbbá, a házhoz két garázs férőhely tartozik, így a gépjárművek biztonságos tárolása is megoldott. Műszaki tartalom:• 20 cm grafitos homlokzati hőszigetelés• monolit vasbeton födém – tágas, egybefüggő belső terek• Prémium, 83 mm-es, passzívház-minősítésű, 3 rétegű gáz töltött, lágy-fém bevonatú nyílászárók• biztonsági nyílászáró-vasalatok, emelő-toló ajtó a földszinti teraszra• bramac tetőcserép, prémium minőségben• elektromos padlófűtés, helyiségenként szabályozható, okosotthon-rendszerhez integrálható• légkondicionált helyiségek• Prémium, modern, teljesen gépesített konyha (Electrolux készülékekkel, kamra/spájz kapcsolattal)• AA+ energetikai besorolás• riasztó- és külső kamerarendszer, applikációról vezérelhető• videó kaputelefon• automata öntözőrendszerrel ellátott, parkosított kert• elektromos kert- és garázskapu, garázskapu 5,4 méter széles, kétállásos garázshoz• minden szobában TV- és internet kiállás• világítás: energiahatékony led panelek, illetve szabályozható színű és fényerejű led stukkó világítás• 1×40A + 2×25A áramerősségA környék biztonságos és csendes, ideális környezetet biztosít a fiatal felnőttek számára, akik értékelik a nyugodt életvitel előnyeit, ugyanakkor a város közelségét is. Diósd remek közlekedési lehetőségekkel rendelkezik, így a főváros könnyen elérhető autóval és tömegközlekedéssel egyaránt. Az M0, M1 és M7 autópályák pár percre, amin Budapest belvárosa könnyedén elérhető. Budaörs, és Törökbálint Bevásárlóközpontjai szintén percek alatt megközelíthető, úgy mint a Campona Bevásárlóközpont is. A bevásárlási lehetőségeken túl közelben iskolák, óvodák is megtalálhatók, buszmegálló néhány perces sétával elérhető, így a ház ideális választás azoknak, akik a főváros közelségét, mégis a kertvárosi élet nyugalmát keresik.Ez az ingatlan nem csupán egy új lakóhely, hanem egy lehetőség arra, hogy egy olyan közösség részévé váljon, ahol a fiatal felnőttek aktívan részt vehetnek a helyi életben. Az ingatlan piaca dinamikusan változik, és ez a kivételes ajánlat nem maradhat sokáig elérhető. Ha Ön is úgy érzi, hogy ez a ház lehet az új otthona, ne habozzon, keressen bizalommal kérdéseivel vagy a megtekintés időpontjával kapcsolatban a hét bármely napján!Ez az ingatlan a \"Felező csomag\" megbízási portfólióhoz tartozik. Részletek az Otthon Centrum weboldalán.
További adatok
Telekterület: 973 m2
Kert mérete: 973 m2
Erkély mérete: 16 m2
Felszereltség: -
Parkolás: -
Kilátás: -
Egyéb extrák:  
-
Hirdető adatai
Hirdető neve: Otthon Centrum
Hirdető telefonszáma: +36 70 461 9991