Nógrád megye, Bátonyterenye
 

Ingatlan adatai
Irányár: 41 941 000 Ft
Típus: ház
Kategória: eladó
Alapterület: 210 m2
Fűtés: gáz (cirko)
Állapota: -
Szobák száma: 4
Építés éve: 1995
Szintek száma: -
Részletes leírás
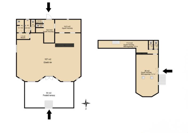
Bátonyterenyén, a Rákóczi utcában eladó:-210 m²-es családi ház-50 m²-es terasz,-54 m²-es félszuterén wellness résszé alakítható helyiség-20 m²-es garázs -180 m²-es beton alapon nyugvó több funkciós csarnok-A teljes hasznos alapterület összesen 260 m², így a ház tágas életteret biztosít akár nagyobb családok részére is.Felszereltség és műszaki jellemzők:-Padlófűtés és gáz (cirkó) fűtési rendszer-5,6 kW teljesítményű hűtő/fűtő klíma -3 elszívó nyílással rendelkező levegőztető rendszer-10 cm-es hőszigetelés, műanyag nyílászárók, cseréptető-Térkövezett kert és udvar, amely rendezett megjelenésű és könnyen karbantartható.Belmagasság:-Fő szint: 2,5 m – kényelmes, világos terek-Szuterén: 2,2 m – ideális munkaterület vagy tárolóLokációAz ingatlan Bátonyterenye egyik jól megközelíthető részén, a Rákóczi utcában található, kiváló közlekedési adottságokkal:-buszmegálló néhány méterre,-vasútállomás kb. 5 perc sétára.-A környék csendes, mégis közel van minden fontos szolgáltatáshoz.-A kastélykert pár perces sétával elérhető, tökéletes hely a kikapcsolódásra és családi sétákra.Sokoldalú lehetőségek – otthon és vállalkozás egy helyenIrodánk minden kedves új és régi ügyfelének szakszerű hitelügyintézést biztosít.Ha felkeltettem érdeklődését, hívjon bizalommal és nézzük meg együtt az ingatlant.
További adatok
Telekterület: 1 238 m2
Kert mérete: 1 238 m2
Erkély mérete: 50 m2
Felszereltség: -
Parkolás: -
Kilátás: -
Egyéb extrák:  
-
Hirdető adatai
Hirdető neve: Otthon Centrum
Hirdető telefonszáma: +36 70 469 3941