Pest megye, Albertirsa
 

Ingatlan adatai
Irányár: 69 900 000 Ft
Típus: ház
Kategória: eladó
Alapterület: 74 m2
Fűtés: gáz (cirko)
Állapota: új
Szobák száma: 2
Építés éve: 2026
Szintek száma: -
Részletes leírás
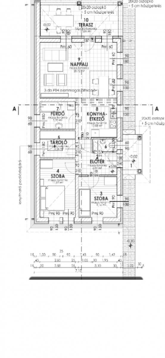
Albertirsa központközeli, belterületi részén épülő önálló családi ház, nagyon jó ár-érték arányú vátelárral, 19MFt önerővel leköthető!Minőségi anyagokból épül, ne szalaszd el a lehetőséget, hogy megfizethető áron Tiéd legyen egy alacsony fenntartási költségekkel rendelkező új építésű családi ház Albertirsán!Az épület 74 nm + 15 nm-es terasz. Betonsáv alapra épül, födém felett és tetősíkon hőszigetelés,  Porotherm téglából, Fa födémmel, sátor tetővel Terrán betoncserép héjazattal. Lábazati és homlokzati szigeteléssel. A külső nyílásrárők fehér műanyagból készülnek hőszigetelt üvegezéssel. Belső ajtók fából kerülnek 70.000 Ft értékben beépítésre.Napali, konyha-étkező egy helységben, két külön álló szóba, fürdőszoba, háztartási helység és közlekedőből áll a ház. A burkolatok közül a hídegburkolatok 7000 Ft ig a laminált padló 5000 Ft ig választható. A fűtés padlófütéssel, fürdőben törölköző szárítős radiáttoral, kondenzációs gázkazánnal lesz megoldva. És az energiafelhasználás csökkentése érdekében 2,7 Kw-os napelem rendszer is felszerelésre kerül.Minden felmerülő kérdéssel forduljon hozzám bizalommal!!Sarka László 20/400-40-29
További adatok
Telekterület: 700 m2
Kert mérete: 700 m2
Erkély mérete: -
Felszereltség: -
Parkolás: -
Kilátás: -
Egyéb extrák:  
-
Hirdető adatai
Hirdető neve: Dabas Régió
Hirdető telefonszáma: 06204004029