Szabolcs-Szatmár-Bereg megye, Nyíregyháza
 

Ingatlan adatai
Irányár: 66 900 000 Ft
Típus: ház
Kategória: eladó
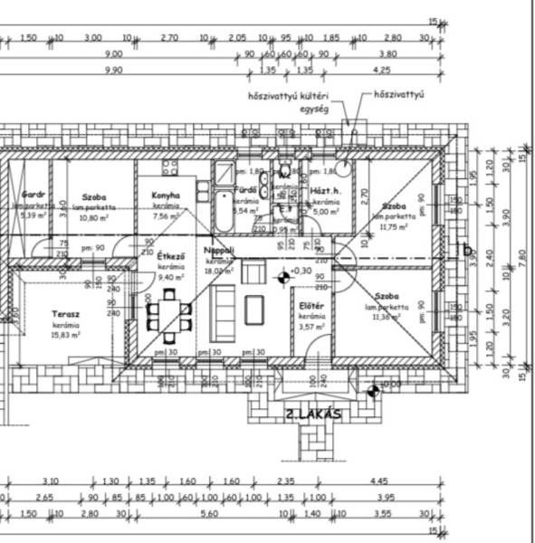
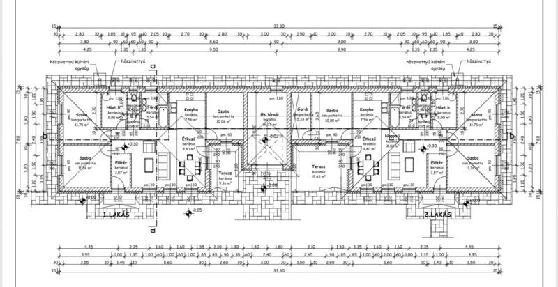
Alapterület: 100 m2
Fűtés: -
Állapota: új
Szobák száma: 4
Építés éve: 2025
Szintek száma: -
Részletes leírás
Eladó prémium ikerház Nyíregyháza egyik legjobb utcájában!Újkistelekiszőlő egyik legkedveltebb utcájában eladó egy 100 nm-es, új építésű ikerház!A tégla falazat és a korszerű hőszivattyús fűtésrendszer garantálja a tartósságot és az alacsony rezsit.Főbb jellemzők:•3 külön nyíló szoba + tágas nappali•napfényes terasz•igényes, modern elrendezés•kulcsrakész átadás 2026 nyár elejénCsaládbarát környezet, rendezett utca, minőségi kivitelezés – minden adott egy kényelmes, nyugodt élethez.Képzelje el, ahogy nyáron a saját teraszodon reggelized a kávéd, miközben a gyerekek a kertben játszanak…Ez az álom most elérhető!Modern technológia, meghitt környezet, otthonos hangulat – ez több, mint egy ház. Ez az új élet kezdete.Amennyiben szeretné saját igényeire szabni az ingatlant ,még lehetséges ,hívjon ne maradjon le róla!A hirdetésben szereplő információk a megbízótól kapott adatok alapján készültek, pontosságukért felelősséget nem vállalunk! Az alaprajz csak tájékoztató jellegű!Amennyiben vásárláshoz hitelre is szüksége van, független hitel tanácsadónk ingyenesen tud Önnek segítséget nyújtani a legjobb konstrukciók kiválasztásában és a folyamat lebonyolításában. Irodánk kereső ügyfeleinknek teljes körű szolgáltatást nyújt, szakszerű tanácsadással, energetikai tanúsítvány elkészítésével, hitelügyintézéssel és profi ügyvédi segítséggel. Abban az esetben ha az ingatlan felkeltette érdeklődését keressen bizalommal!
További adatok
Telekterület: 720 m2
Kert mérete: 720 m2
Erkély mérete: 16 m2
Felszereltség: -
Parkolás: -
Kilátás: -
Egyéb extrák:  
-
Hirdető adatai
Hirdető neve: Otthon Centrum
Hirdető telefonszáma: +36 70 469 3361