Pest megye, Taksony
 

Ingatlan adatai
Irányár: 134 000 000 Ft
Típus: ház
Kategória: eladó
Alapterület: 127 m2
Fűtés: gáz (cirko)
Állapota: -
Szobák száma: 4
Építés éve: 1975
Szintek száma: -
Részletes leírás
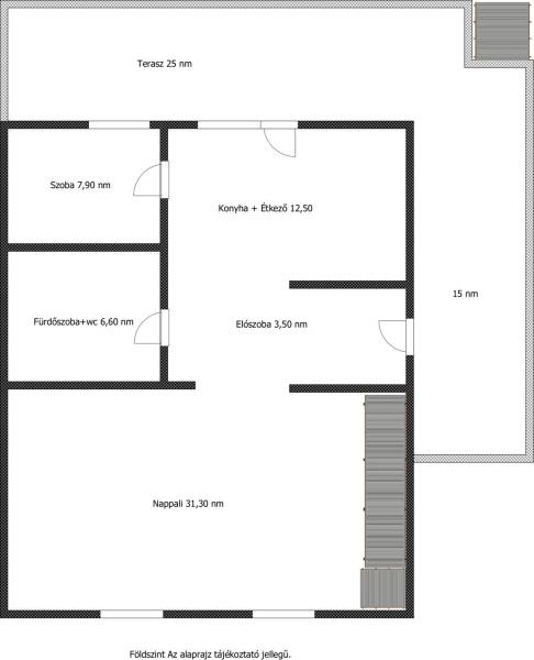
Mediterrán kert saját medencével – nyugalom és kényelem Taksonyban, Dunaharasztitól pár percre!Képzeld el, hogy minden reggel egy mediterrán kert látványa fogad: csillogó medence, illatozó növények, árnyas pihenőrész és egy hangulatos kerti sütögető. Egy hely, ahol tényleg lelassulhatsz – mégis közel maradsz a mindennapi városi élethez.Ez a 127 m²-es, kétszintes, téglaépítésű, szigetelt családi ház egy csodásan parkosított 811 m²-es telken vár rád. Az emelet 2024-ben teljes felújítást kapott, így az ingatlanba csak be kell költöznöd.A ház elosztása:Földszint:• előszoba• tágas nappali• konyha + étkező• hálószoba• fürdőszoba• lépcső alatti gardróbEmelet:• két szoba• közlekedő• fürdőszoba• gardróbVilágos terek, jól kihasznált alaprajz, kényelmes családi életre tervezve.A kert – a telek igazi ékszere, mediterrán oázis:• saját medence• halastó• automata öntözőrendszer• kerti sütögető• gondozott mediterrán növényzet• árnyékos pihenőrész• körbeölelő, hangulatos terasz 16,7 m²-es pince A kert végében egy 8 m²-es tároló vagy vállalkozásra is alkalmas helyiség.A ház előtt 2024-ben készült automata kapuval ellátott dupla autóbeálló és térkövezett parkoló.A telefonról vezérelhető kamerarendszer gondoskodik a modern biztonságról.Elhelyezkedés és közlekedés – minden közel van, mégis csendes:• Taksony egyik nyugodt, rendezett utcájában• Dunaharaszti pár perc autóval• Budapest autóval 15–20 perc• Közeli HÉV és buszjáratok• Iskola, óvoda, rendelő, boltok, gyógyszertár, sportpálya, éttermek – minden a közelbenEz az ingatlan több mint egy ház: egy saját mediterrán oázis, ahol minden adott a kikapcsolódáshoz, a baráti és családi pillanatokhoz, és a nyugodt, kényelmes mindennapokhoz.Szeretnéd élőben is átélni a hangulatát? Szívesen mutatom!
További adatok
Telekterület: 811 m2
Kert mérete: 811 m2
Erkély mérete: 40 m2
Felszereltség: -
Parkolás: -
Kilátás: -
Egyéb extrák:  
-
Hirdető adatai
Hirdető neve: Otthon Centrum
Hirdető telefonszáma: +36 70 465 7056