Somogy megye, Szőkedencs
 

Ingatlan adatai
Irányár: 24 900 000 Ft
Típus: ház
Kategória: eladó
Alapterület: 76 m2
Fűtés: gáz (konvektor)
Állapota: -
Szobák száma: 3
Építés éve: 1950
Szintek száma: -
Részletes leírás
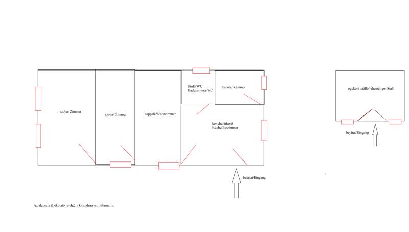
3% OTTHON START ÉS FALUSI CSOK IGÉNYELHETŐSomogy vármegyében, az M7 autópálya közvetlen közelében, Szőkedencs csendes és nyugodt környezetében kínálunk 3 szobás parasztházat eladásra, amely ideális választás lehet minden korosztály számára, akik szeretnék élvezni a vidéki élet nyugalmát és szépségeit.Az épület 3 szobával rendelkezik, kényelmes otthona lehet családoknak, de befektetési célokra is remek lehetőséget kínál. A telek mérete 2158 nm, ami elegendő teret biztosít a szabadidős tevékenységekhez, kertészkedéshez. Az ingatlanban az elmúlt évek során több felújítás történt, a leendő tulajdonos saját ízlése szerint alakíthatja ki a belső tereket. A fűtés gázkonvektorral és cserépkályhával történik, ami kényelmes és gazdaságos megoldás a téli hónapokban. Szőkedencs egy nyugodt, biztonságos település, ahol a közlekedési lehetőségek is kedvezőek. Az autóval való közlekedés egyszerű, a 7-es főút és az M7 autópálya gyors hozzáférést biztosítanak a környező városokhoz, a helyi buszjáratok lehetővé teszik a tömegközlekedést is. az ingatlan főbb jellemzői:- kiváló megközelíthetőség- csendes, természetközeli fekvés- belterület- Ingatlan nyilvántartás szerint: KIVETT LAKÓHÁZ, UDVAR, GAZDASÁGI ÉPÜLET- 76nm alapterület- 1950-es években épült vegyes falazatú, döntő többségben tégla épület- földszintes parasztház látszó gerendákkal- fa nyílászárók- cseréptető- a fűtés 2 gázkonvektorral és cserépkályhával biztosított- meleg víz ellátása villanybojlerrel történik- a fürdőszoba 2010-ben került kialakításra- a konyha kb 3 éve újult meg- kémény 3 éve lett újra rakva- jelen állapotában is egész évben lakható- az épület főképp homlokzati felújítást igényel, leendő tulajdonosa saját ízlése szerint alakíthatja ki - 2.158 nm a telek nagysága- körbe kerített- vezetékes villany, víz, gáz bevezetve, szennyvíz elvezetése zárt emésztőben történik- az udvarban található egykori tégla istálló további bővülésre ad lehetőséget (32nm)- a melléképület tetőzete felújításra került- a kert bőséges teret kínál a szabadidős tevékenységekhez, kertészkedéshez, gyümölcsös kialakításához- a telek hátsó részében akácos található- külön hátsó útról is könnyen megközelíthetőaz épület elosztása:- a lakóházban 3 különálló szoba található ( 2 háló és 1 nappali)- fürdőszoba/ WC- konyha/étkező- nagy méretű kamra, padlásfeljáróvalSzőkedencs egy csendes, barátságos 260 fős kistelepülés, ahol a természet közelsége és a friss levegő garantálja a nyugalmat. A település biztonságos, és az itt élők közössége összetartó. A közlekedés is kedvező, hiszen a közeli városok, mint például Keszthely, Marcali, Nagykanizsa kb 20 percen belül megközelíthetők autóval és tömegközlekedéssel is. Zalakaros gyógyfürdő 15 kilométerre található. A legközelebbi vasútállomás Zalakomárban elérhető. A közeli boltok, orvosi rendelő, könyvár, 2 templom és egyéb szolgáltatások pedig megkönnyítik a mindennapi életet. A Kis-Balaton közelében a falu nevezetessége a temetőben található közel 700 éves hársfa.Ez az ingatlan egy lehetőség arra, hogy egy olyan helyen éljen, ahol a természet közelsége és a csendes életvitel harmóniában találkozik. Ha Ön is szeretne többet megtudni erről az ajánlatról, várjuk hívását!Az adatok és alaprajz tájékoztató jellegű.
További adatok
Telekterület: 2 158 m2
Kert mérete: 2 158 m2
Erkély mérete: -
Felszereltség: -
Parkolás: -
Kilátás: -
Egyéb extrák:  
-
Hirdető adatai
Hirdető neve: Otthon Centrum
Hirdető telefonszáma: +36 70 412 5636