Pest megye, Diósd
 

Ingatlan adatai
Irányár: 211 000 000 Ft
Típus: ház
Kategória: eladó
Alapterület: 220 m2
Fűtés: -
Állapota: új
Szobák száma: 10
Építés éve: 2026
Szintek száma: -
Részletes leírás
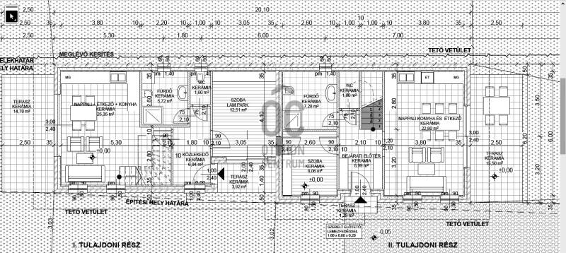
Diósd szívében, a csendes és zöldövezeti városrészben kínáljuk eladásra ezt az újépítésű házat!Az egész épület félkészen 129.000.000 Ft, kulcsrakészen 211.000.000 FtKulcsrakész állapot szerződéskötést követő 6 hónapon belül!Magas műszaki tartalom, ajándék konyha 1 millió Ft-ig!Az épület két ikerfélből áll, melyek külön-külön is megvásárolhatóak:- Az utcafronti (92nm hasznos területtel, bruttó 119 nm, 4 háló+amerikai konyhás nappali, 2 fürdőszoba + vendégWC): félkész állapot 55.500.000 Ft, kulcsrakész állapot 86.900.000 Ft!- A hátulsó ikerfél (99 nm hasznos területtel, bruttó 129,5 nm, 4 háló+amerikai konyhás nappali, 2 fürdőszoba + vendégWC+ gardrób): félkész állapot 66.000.000 Ft, kulcsrakész állapot 105.000.000 Ft!Hívjon bizalommal!Hitelre volna szüksége a vásárláshoz? Bankfüggetlen Hitelügyintézőnkkel állunk rendelkezésre ingyen!
További adatok
Telekterület: 1 091 m2
Kert mérete: 1 091 m2
Erkély mérete: -
Felszereltség: -
Parkolás: -
Kilátás: -
Egyéb extrák:  
-
Hirdető adatai
Hirdető neve: Otthon Centrum
Hirdető telefonszáma: +36 70 388 6316