Somogy megye, Zamárdi
 

Ingatlan adatai
Irányár: 199 900 000 Ft
Típus: ház
Kategória: eladó
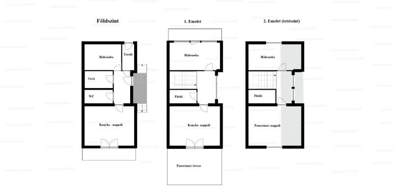
Alapterület: 160 m2
Fűtés: -
Állapota: -
Szobák száma: 6
Építés éve: 1975
Szintek száma: -
Részletes leírás
Ha valódi vízparti ritkaságot keres, akkor most megtalálta!Zamárdi csendes, mégis jól megközelíthető üdülőövezetében kínálok eladásra egy frissen megújított, különleges hangulatú ingatlant, mindössze 20 méterre a Balaton vizétől.A ház közvetlen közelében fürdési és horgászati lehetőség is adott, a kissé nádas partszakasz pedig nem akadályozza a vízhez jutást – a kialakított, tisztított lejáró és a csónakos sólya pár lépésre található az épülettől. Emellett egy szabadstrand is elérhető mindössze 200 méterre.Az ikerház háromszintes, összesen 160 m² alapterületű, és két különálló apartmant foglal magában.Az egyik földszinti, kényelmes, egyszintes apartman,a másik külön bejáratú, emeleti és tetőtéri lakrész belső lépcsővel.Mindkettő a 460 m²-es, önálló telekrészen helyezkedik el, így a privát tér is garantált.Az ingatlan néhány éve teljes felújításon esett át, és a nyílászárók cseréje most fejeződött be. Az udvarban új térkövezés készül, mely tovább növeli a rendezett, modern megjelenést. (Friss fotók hamarosan elérhetők lesznek.)A felső szint tágas teraszáról és a nappaliból páratlan panoráma tárul elénk – egészen a Tihanyi Apátságig. Esténként a naplementében gyönyörködve, egy pohár bor társaságában élvezheti a balatoni életérzést.A ház minden szobája légkondicionált, a fűtés-hűtés kombinált rendszerét modern klímák és elektromos fűtőpanelek biztosítják – így az ingatlan egész évben komfortosan használható.Ez az otthon nemcsak pihenésre ideális, hanem kiemelkedő befektetés is:az idei évben négycsillagos apartmanként üzemelt, többmilliós bevételt termelve, és a következő szezonra is jelentős előfoglalásokkal rendelkezik.
További adatok
Telekterület: 460 m2
Kert mérete: 460 m2
Erkély mérete: 20 m2
Felszereltség: -
Parkolás: -
Kilátás: -
Egyéb extrák:  
-
Hirdető adatai
Hirdető neve: Otthon Centrum
Hirdető telefonszáma: +36 70 412 3126