Budapest, XVII.kerület
 

Ingatlan adatai
Irányár: 94 000 000 Ft
Típus: ház
Kategória: eladó
Alapterület: 160 m2
Fűtés: gáz (cirko)
Állapota: felújítást igényel
Szobák száma: 7
Építés éve: 1990
Szintek száma: -
Részletes leírás
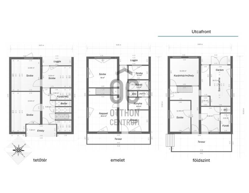
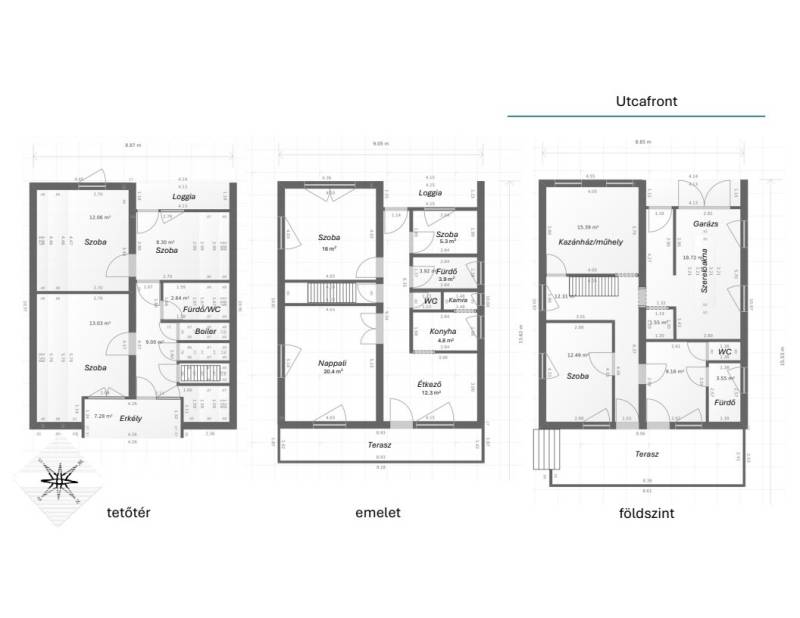
A Rákoskert domboldalában, a Fuvaros utcában található családi ház a felújítás után ideális otthona lehet nagycsaládnak vagy 2 generációnak is. A ház egy 725 nm-es lejtős telekre épült a 80-as évek végén. Három szinten, 2 külön lakrész és akár 7 szoba is kialakítható. Az épület statikailag rendben van, nem sülyed, nem vizesedik. ALSÓ SZINT: Az utca felőli oldalon egy tágas garázs található, szerelőaknával. Mellette a kazánház-műhely-tároló. Az udvar felől egy garzon lakás lett kialakítva, lejtős telek révén ez egy földszinti lakás, nem szuterén. Szoba, konyha-étkező, fürdőszoba, WC. Közvetlen kijárattal a kertbe, egy nagy teraszra. A lakás a garázs felől ajtóval leválasztható, az utca és a kert felől is megközelíthető. KÖZÉPSŐ SZINT: Kis ráfordítással gyorsan lakhatóvá tehető, nappali + 2 szoba, étkező, konyha, kamra, fürdőszoba, WC kialakításban. Az étkezőhöz kapcsolódó terasz nyáron árnyékos, ideális kiterjesztése az étkezőnek, grillező és pihenőhely lehet. TETŐTÉR: A tetőtérben 3 szoba, fürdőszoba, WC, tároló helyiségek kialakítása kezdődött meg. A tetőtéri erkélyről a kert rendezése után a szemközti dombok panorámája tárulhat elénk. GÉPÉSZET, MŰSZAKI PARAMÉTEREK:A ház elkezdett felújítása során az elektromos hálózat teljesen elkészült. Új kondenzációs gázkazán került beépítésre, meghagyva a régi vegyestüzelésű lehetőséget is. Jelenleg a meleg vizet a tetőtérben elhelyezett 120 literes villanybojler szolgáltatja, de ráköthető az új gázkazánra is. Az épület teherhordó falai 40 cm vastag falazóblokkból készültek, a fa nyílászárók hőszigetelt üvegezésűek. Az udvar hátsó részén található még egy 30 nm hasznos alapterületű tégla épület, műhely-raktár funkciókkal. Az utcáról lehetőség van még több gépkocsi beállására is. RÁKOSKERT: A zöldövezeti nyugalom Budapest szélén. Azoknak ideális, akik szeretnének Budapesten élni, de a kertes házas, zöldövezeti környezetet, a nyugalmat és a közösségi életet részesítik előnyben. Rákoskert népszerű lakóhely, ami főként a kertvárosi jellegének és a természeti közelségének köszönhető.A természet közelség és a magasabb fekvés:•Kertvárosi hangulat: A városrész jellege a budai kerületekhez hasonlít, sok utcája lejtős, ami egyedi látképet kölcsönöz neki. A kellemes környezet miatt kedvelt lakóterületnek számít.•Vidadomb: Rákoskert legmagasabb pontja (kb. 200 méter), ahonnan szép panoráma nyílik a közeli védett Merzse-mocsárra és a Ferihegyi repülőtérre. A domb a helyi közösségi élet fontos helyszíne, ahol rendszeresen rendeznek koncerteket, ünnepségeket. Itt található játszótér, focipálya és felnőtt kondipark is.•Merzse-mocsár: A XVII. kerület területén található a 27 hektáros Merzse-mocsár, amely Budapest egyik legháborítatlanabb vizes élőhelye és természetvédelmi terület, ami ideális célpont a természetkedvelőknek, futóknak, kirándulóknak. Tömegközlekedéshez a buszmegálló pár perc séta. A XVII. kerület központja, a Fő tér (piac, szakorvosi rendelő, Polgármesteri Hivatal, bankfiókok, gyógyszertár, üzletek, cukrászda, ……..) 15 perc alatt elérhető. Gépkocsival az M0 5 perc. A maglódi bevásárlóközpont (Auchan, Decathlon, Bauhaus) szintén. Liszt Ferenc Repülőtér 15 perc.
További adatok
Telekterület: 725 m2
Kert mérete: 725 m2
Erkély mérete: 62 m2
Felszereltség: -
Parkolás: -
Kilátás: -
Egyéb extrák:  
-
Hirdető adatai
Hirdető neve: Otthon Centrum
Hirdető telefonszáma: +36 70 388 5141