Hajdú-Bihar megye, Hajdúszoboszló
 

Ingatlan adatai
Irányár: 134 990 000 Ft
Típus: ház
Kategória: eladó
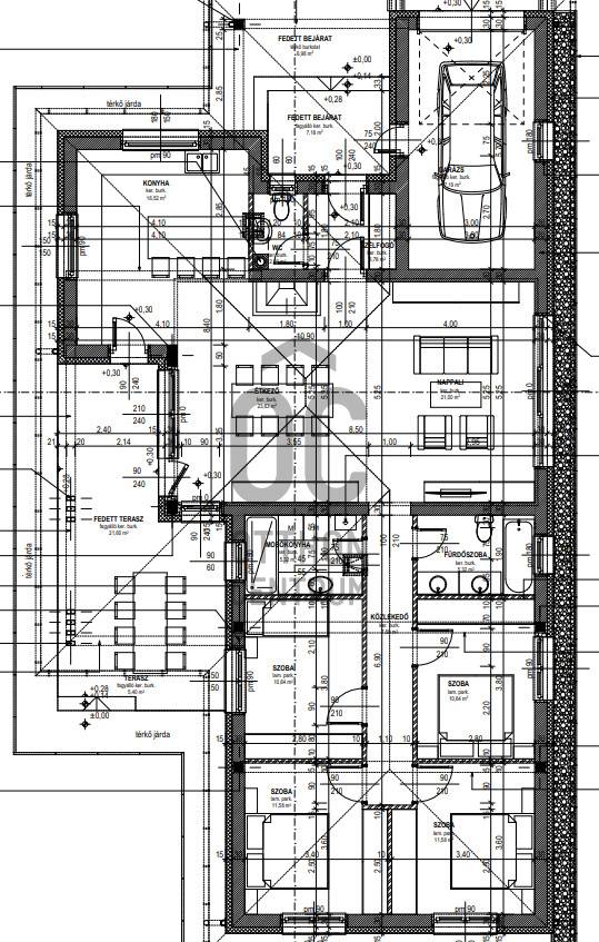
Alapterület: 130 m2
Fűtés: gáz (cirko)
Állapota: új
Szobák száma: 5
Építés éve: 2026
Szintek száma: -
Részletes leírás
Ha egy igazán különleges, modern otthont keresel Hajdúszoboszló Kertvárosában, akkor ez az ingatlan neked szól! Az új építésű, prémium kivitelezésű ház 130 nm-en terül el, és 750 nm-es telekkel rendelkezik, ami bőséges helyet biztosít a kikapcsolódásra és a szabadidős tevékenységekre. Az ingatlanban öt tágas szoba található, így ideális választás, akár családosok, akár baráti társaságok számára. A világos nappali és az amerikai konyha egyedi tervezésének köszönhetően a közös időtöltés élménye igazán különleges lesz. A 22 nm-es teraszra kilépve pedig élvezheted a csendes környék nyugalmát, miközben a friss levegőn pihenhetsz. A ház állapota kiváló, minden részletében a modern igényeknek megfelelően lett kialakítva. A fűtés gáz cirkóval, a hűtés klímával megoldott, így az év bármely szakaszában kellemes hőmérséklet vár rád. A nagy belmagasság és a világos terek pedig még inkább fokozzák a tágasság érzetét. Hajdúszoboszló Kertvárosának környezete kiemelkedően csendes és biztonságos, ideális helyszín a pihenésre és a feltöltődésre. Ez az ingatlan nemcsak egy otthon, hanem egy életstílus megtestesítője is. Ha szeretnél egy exkluzív, modern, kertkapcsolatos lakásban élni, ahol a természet és a városi kényelem találkozik, ne habozz! Kérdéseiddel bizalommal kereshetsz, szívesen segítek megtalálni a számodra legmegfelelőbb megoldást, hogy ez a csodás ingatlan a tiéd lehessen.
További adatok
Telekterület: 750 m2
Kert mérete: 750 m2
Erkély mérete: 22 m2
Felszereltség: -
Parkolás: -
Kilátás: -
Egyéb extrák:  
-
Hirdető adatai
Hirdető neve: Otthon Centrum
Hirdető telefonszáma: +36 70 469 3411