Budapest, XVIII.kerület
 

Ingatlan adatai
Irányár: 99 990 000 Ft
Típus: lakás (újépítésű)
Kategória: eladó
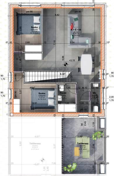
Alapterület: 75 m2
Fűtés: -
Állapota: új
Szobák száma: 3
Építés éve: 2025
Szintek száma: -
Részletes leírás
ÚJ ÉPÍTÉSŰ, ENERGIATAKARÉKOS LAKÁSOK XVIII. kerületben – Bókaytelepen!Eladó 4 lakásos, modern társasházban épülő lakások.Kiváló elosztás, amerikai konyhás nappali+2 szoba tetőterasz.Főbb jellemzők:Monoblokkos hőszivattyús fűtés + padlófűtés3 rétegű nyílászárók, szigetelt falazatVálasztható burkolatok, szaniterek, belső ajtókA lakásokhoz garázs vagy gépkocsi beálló vásárolható, melyek árát a vételár nem tartalmazza.Garázs ára: +5.5MFt, gépkocsi beálló + 1.5MFt.
További adatok
Telekterület: -
Kert mérete: -
Erkély mérete: 17 m2
Felszereltség: -
Parkolás: -
Kilátás: udvari
Egyéb extrák:  
-
Hirdető adatai
Hirdető neve: Rock Home
Hirdető telefonszáma: +36 70 467 6795