Budapest, XIII.kerület
 

Ingatlan adatai
Irányár: 89 900 000 Ft
Típus: lakás (újépítésű)
Kategória: eladó
Alapterület: 45 m2
Fűtés: -
Állapota: új
Szobák száma: 2
Építés éve: 2025
Szintek száma: -
Részletes leírás
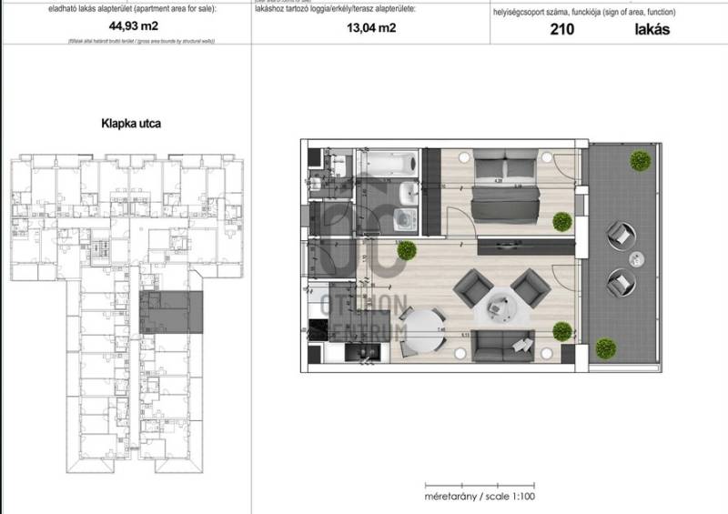
XIII., Klapka utcában épülő társasházban eladó egy kétszobás lakás!A 45nm-es alapterületen nappali-étkező-konyha, hálószoba, előszoba, külön fürdő és WC került elhelyezésre. 13 nm-es terasz is tartozik a lakáshoz, amely a csendes belső kertre néz. Délkeleti fekvésének köszönhetően egész nap világos, a modern hőszivattyús fűtés pedig hozzájárul ahhoz, hogy a fenntartási költségek alacsonyak maradjanak.Teremgarázs beálló 8,5M forintért vásárolható!Átadás: 2026.év vége
További adatok
Telekterület: -
Kert mérete: -
Erkély mérete: 13 m2
Felszereltség: -
Parkolás: -
Kilátás: kertre néző
Egyéb extrák:  
-
Hirdető adatai
Hirdető neve: Otthon Centrum
Hirdető telefonszáma: +36 70 716 9826