Budapest, I.kerület
 

Ingatlan adatai
Irányár: 139 900 000 Ft
Típus: lakás (tégla)
Kategória: eladó
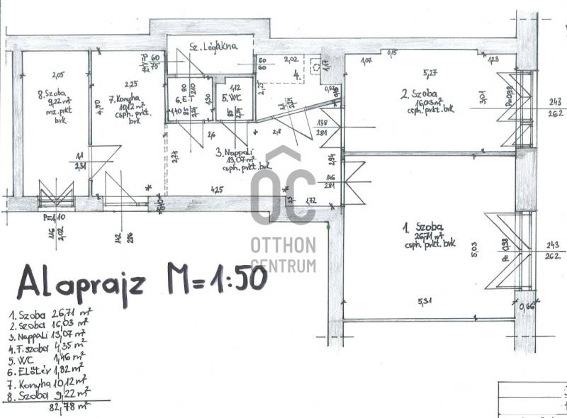
Alapterület: 84 m2
Fűtés: gáz (konvektor)
Állapota: -
Szobák száma: 3
Építés éve: 1920
Szintek száma: -
Részletes leírás
Eladásra kínálok a Buda egy legpatinásabb utcájában a Batthyány utcában, egy jó elosztású, 84 m2-es, tökéletes állapotban lévő lakást.A történelmi környezet, a macskaköves járdák, műemlék-épületek közelsége különleges hangulatot kölcsönöz a városrésznek. A lakás kiváló választás azoknak akik elegáns környezetre, ugyanakkor belvárosi közelségre vágynak legyen az befektetési vagy saját lakhatási célú vásárlás. Az ingatlan teljes körű felújításon esett át, és ideális elosztással rendelkezik. A belső terek kialakítása során modern, letisztult ugyanakkor hangulatos otthon jött létre.Polgári jellegéből adódóan, valamint jelentős belmagasságának és nagy nyilászáróinak köszönhetően a lakás tágas, jól kihasználható, akár galéria kialakítására is alkalmas.A lakás gazdaságos fűtését a cirkó fűtés biztosítja, konvektorok, illetve cserépkályha segítségével, míg a melegvíz ellátásáról villanybojler gondoskodik.Kialakítás:- Nappali, hálószoba, hálószoba, konyha, hall, gardrób, fürdőszoba, wc- A lichthof-hoz csak ennek a lakásnak van bejárása, amely kb. 2 m2 nagyságú- Az ingatlanhoz egy saját, zárható tároló rekesz is tartozik, amely a pincében található.Állapot:A felújításnak, gondos odafigyelésnek és a minőségi belső elemeknek köszönhetően az ingatlan hibátlan, költségmentes állapotban van.A 2025-ben elvégzett felújítás magában foglalta:- a víz, és villanyvezeték cseréjét, melynek része volt az új kapcsolók, konnektorok beszerelése és a teljesítménybővítés is- a konyha, hall és a szobák burkolatai cserélve lettek ízlésesen kiválasztott hideg és melegburkolatokra- az ablakok felújításra kerültek, a belső nyílászárók cserélve lettek- a bejárati ajtó biztonsági, műanyag ajtóra lett cserélveA látványterveken szereplő konyha és gardrób egyedi tervezésű beépített bútorainak kialakítása a berendezésekkel, 5M Ft ellenében megvalósításra kerülnek 1 hónapon belül. A képeken szereplő nappali tervek, egyedi ajánlat részét képezik, amennyiben igény van rá.Költségek:- víz, villany, csatorna: fogyasztás alapján, saját mérőórával- közös költség: 22.000.-FtA lakásról:- tulajdoni lapon fölszinten, gyakorlatban a 3 szintes ház 1. emeleten található, kényelmesen megközelíthető- ÉNY-i tájolás- 380 cm belmagasság- lifttel rendelkezik- a fürdőben beépített kabinos kád, különböző funkciókkal, törölközőszárító, ízléses csempe és járólap- csendes ucára néző adottság - nagyméretű ablakok- külön nyíló szobák- külön helységben wcTársasház:- rendezett pénzügyi kerettel és megtakarítással rendelkezik- hangulatos leburkolt és zöld növényekkel ellátott, szép belső társaházi udvar- a tető felújítása jelenleg zajlik- kitűnő lokáció- kaputelefon Környezet és közlekedés:A környék különleges hangulatát a Budai vár alatti keskeny, kanyargós, lankás utcái adják, és könnyed sétával a világörökség listáján szereplő várnegyed és Duna-parti panoráma is elérhető. Infrastruktúra szempontjából a Széll Kálmán tér, mint kiváló vásárlási és szolgáltatási lehetőségekkel rendelkező övezet és közlekedési csomópont, néhány perc alatt megközelíthető. Alapvető szolgáltatások és kikapcsolódási lehetőségek szintén nagyon közel találhatóak, többek között: Széllkapu park, Millenáris park, Fény utcai piac, Mammut bevásárló központ, szupermarketek, posta, bank, fodrászat, gyógyszertár, kávézók, éttermek, iskolák, óvodák, színház, mozi stb.). Közlekedés szempontjából a Széll Kálmán térről rengeteg közlekedési eszköz elérhető: M2-es metró, buszok (11,22,16,5,91...), villamosok (4-6-os, 17, 56, 59, 61)Az ingatlan per, teher és igénymentes, 1/1 tulajdonjoggal rendelkezik.Az ingatlan megvásárlásához jelzáloghitel, CSOK, Babaváró is igénybe vehető, melynek ügyintézésében közvetlenül tudunk segítséget nyújtani.Ha felkeltette az ingatlan az érdeklődését és szívesen lenne új lakója ennek a kedves lakásnak, úgy forduljon hozzám maximális bizalommal és mindenben segítek.
További adatok
Telekterület: -
Kert mérete: -
Erkély mérete: -
Felszereltség: -
Parkolás: -
Kilátás: udvari
Egyéb extrák:  
-
Hirdető adatai
Hirdető neve: Otthon Centrum
Hirdető telefonszáma: +36 70 461 9841