Jász-Nagykun-Szolnok megye, Abádszalók
 

Ingatlan adatai
Irányár: 85 775 500 Ft
Típus: lakás (újépítésű)
Kategória: eladó
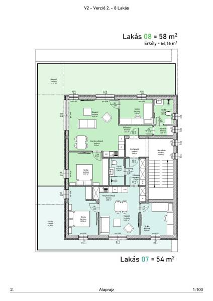
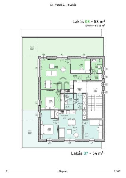
Alapterület: 58 m2
Fűtés: egyéb
Állapota: új
Szobák száma: 3
Építés éve: 2027
Szintek száma: -
Részletes leírás
A projekt gyöngyszeme – tágas lakás, lenyűgöző panorámás terasszal.58 m² lakótér átgondolt elosztással: nappali, két hálószoba, amerikai konyhás étkező, gardrób és modern fürdő.A 64 m²-es hatalmas terasz igazi luxust kínál – kültéri nappali, napozó, virágoskert, akár jacuzzi is elfér rajta.Modern kivitelezés, maximális kényelem és kivételes szabadtéri térélmény.Tökéletes választás nyaralónak, prémium állandó otthonnak vagy befektetésnek a Tisza-tó szívében.Projekt bemutatásaBefektetés a nyugalomba!...Olyan döntés, ami nemcsak hozamot, hanem harmóniát is ad. A Tisza-tó mellett most mindkettőt megtalálod... Elindult Abádszalók egyik legígéretesebb lakóprojektje !A projekt célja: élhető nyaralókat vagy jövedelmező befektetéseket kínálni, kompromisszumok nélkül.16 modern lakás, vízparti közelséggel, panorámával és magas műszaki tartalommal.Főbb jellemzők:° 1-2-3 szobás lakások ° kertkapcsolat vagy erkély ° vízparti hangulat, természet közelsége ° saját garázs, parkoló és tároló ° modern, energiatakarékos kialakításAbádszalók a Tisza-tó régió egyik vízparti települése, turisztikailag kiemelt övezetben.A természet közelsége, a csendes környezet és a folyamatosan fejlődő infrastrukturális háttér miatt egyre keresettebb mind nyaralóként, mind állandó otthonként vagy befektetésként.Átadás várható dátuma. 2027. II. negyedév.
További adatok
Telekterület: -
Kert mérete: -
Erkély mérete: 65 m2
Felszereltség: -
Parkolás: -
Kilátás: udvari
Egyéb extrák:  
-
Hirdető adatai
Hirdető neve: Otthon Centrum
Hirdető telefonszáma: +36 70 716 8911