Pest megye, Dunakeszi
 

Ingatlan adatai
Irányár: 349 000 000 Ft
Típus: ház
Kategória: eladó
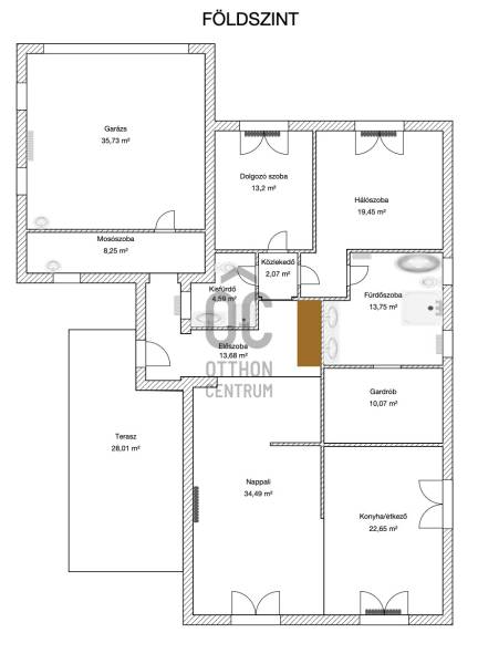
Alapterület: 290 m2
Fűtés: gáz (cirko)
Állapota: -
Szobák száma: 7
Építés éve: 2009
Szintek száma: -
Részletes leírás
Dunakeszi az északi agglomeráció központja, egy rendkívül gazdag kertváros a Duna szomszédságában Budapesttől mindössze 15 km-es távolságra, így a Főváros zajától távol, ám attól karnyújtásnyira.Számos területi fejlesztés színteréül szolgál, dinamikus fejlődésével kitűnik a környező városok közül. Híres jó nevű iskoláiról, pezsgő Dunaparti életéről, szabadstrandjáról, csárdáiról , modern játszótereiről, kiváló közlekedési feltételeiről, valamint természeti adottságainak átgondolt hasznosításáról. Innovatív városfejlesztési közé tartozik a tavalyi évben átadott DIÁKNEGYED, mely az országban egyedülálló középiskola komplexum!Itt, a város presztízs lakóparkjában, a díszburkolt sétálóutcáknak, rendezett portáknak és nívós, fiatal építésű házaknak otthont adó Tóváros lakóparkban, annak is a legszebb utcájában a Tó-tól pár lépésnyire került eladósorba egy minden igényt kielégítő CSALÁDI OTTHON. Különálló családi ház, egészséges méretű 710m2-es gyönyörűen parkosított telken fekszik, kertjében dísznövények, virágoázisok, MEDENCE (4x8m hőszivattyús!), jakuzzi szolgálja a pihenést teljesen intim környezetben!NEM HIVALKODÓ, a klasszikus formavilág köntösébe bújtatott luxus csak a Családé!A nagy alapterület MINIMÁLIS FENNTARTÁSI KÖLTSÉGET emészt, így kiváló konstrukció!Br.290m2-én átgondolt, ÉLTRE SZABOTT elrendezés valósult meg:Földszinten: DUPLAGARÁZS, mosókonyha, előszoba, tágas amerikai konyhás nappali-étkező, fürdőszoba, hálószoba, lépcsőtér valamint a szülői lakrész kapott helyet. A szülői lakrész diszkréten szeparált hálószoba saját fürdőszobával valamint gardróbszobával.Emeleten: 3 nagy méretű hálószoba, tágas fürdőszoba és közösségi tér-nappali kapott helyet.Az egyébként is fiatal ház teljeskörű felújításon esett át, ekkor egészítették ki a hőszabályozást fain coil-os hűtés-fűtéssel amit a 13kW-os napelemrendszer biztosít! Áramfogyasztás forintban: 0!!!Nagy, világos élhető terek, tökéletesen funkcióra, családra szabott otthon luxus környezetben!Tökéletes választás nagycsaládosoknak, családalapítás előtt állóknak és azoknak akik NEM KÖTNEK KOMPROMISSZUMOT és mind a terület mind pedig az otthon amit keresnek presztízsértékű és maximálisan pihenésre szabott kell legyen!
További adatok
Telekterület: 709 m2
Kert mérete: 709 m2
Erkély mérete: 28 m2
Felszereltség: -
Parkolás: -
Kilátás: -
Egyéb extrák:  
-
Hirdető adatai
Hirdető neve: Otthon Centrum
Hirdető telefonszáma: +36 70 388 6301