Budapest, VI.kerület
 

Ingatlan adatai
Irányár: 85 000 000 Ft
Típus: lakás (tégla)
Kategória: eladó
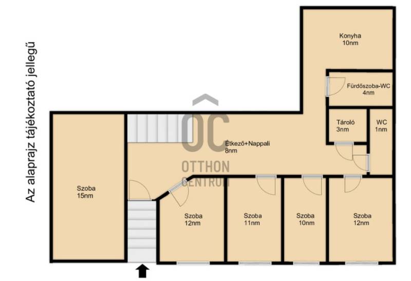
Alapterület: 90 m2
Fűtés: gáz (cirko)
Állapota: -
Szobák száma: 5
Építés éve: 1931
Szintek száma: -
Részletes leírás
4 szobás, modern ingatlan a VI. kerületben, biztos bevétellel!Eladó befektetési lehetőség Budapest szívében, a VI. kerületben!A Szív utcában kínálunk megvételre egy 90 nm-es, félszuterén szinten található, teljeskörűen felújított ingatlant.✅ 4 külön nyíló lakószoba + 1 relax szoba✅ 2 WC + fürdőszoba✅ Jelenleg hostelként üzemel – a bérlők szívesen maradnának, így azonnali hozamot biztosít.✅ Igényes felújítás, modern kialakításAz ingatlan elhelyezkedése kiemelkedő: Budapest belvárosában, a VI. kerület központi részén, kiváló közlekedési és infrastrukturális adottságokkal.Amennyiben felkeltettem érdeklődését, kérem hívjon bozalommal, akár hétvégén is!
További adatok
Telekterület: -
Kert mérete: -
Erkély mérete: -
Felszereltség: -
Parkolás: -
Kilátás: utcai
Egyéb extrák:  
-
Hirdető adatai
Hirdető neve: Otthon Centrum
Hirdető telefonszáma: +36 70 469 3516